- Top Floor
- Period Apartment
- Convenient Location
- Band A
Full Description
This unfurnished, well-presented, top floor apartment is situated within a period apartment block. Conveniently located within walking distance of Birkenhead Town Centre, it offers easy access to local amenities and excellent transport links.
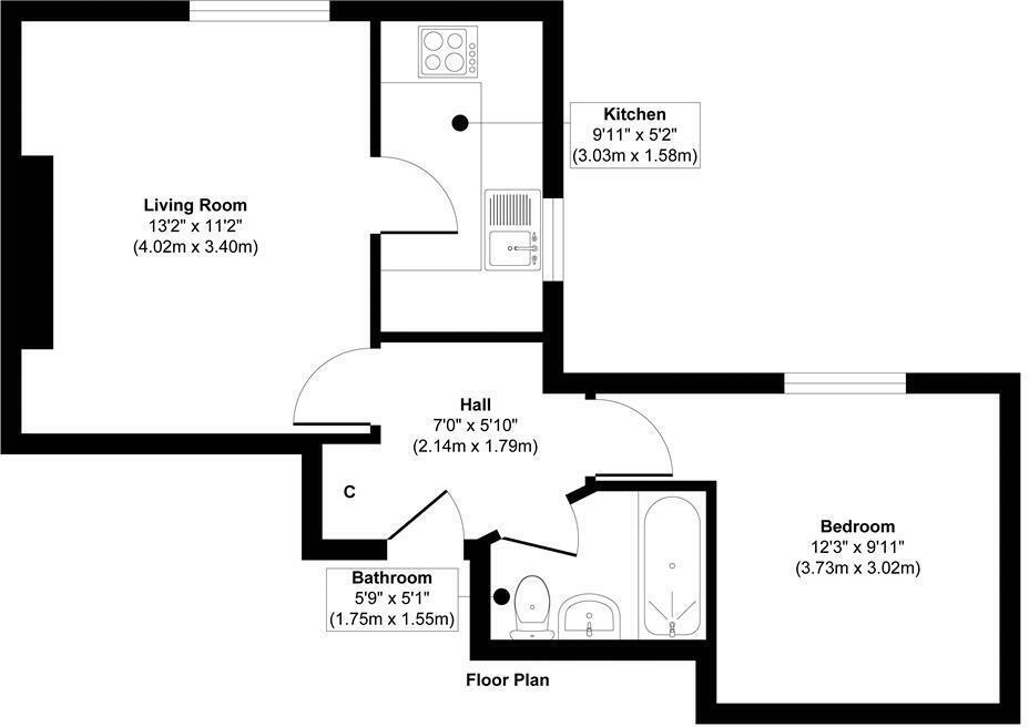
The spacious apartment features a welcoming hallway, a bright living room, and a fitted kitchen equipped with an oven, hob, washing machine and undercounter fridge freezer. The property includes a comfortable double bedroom and a modern bathroom with both a bath and shower.
We anticipate a great deal of interest in this property so please complete a Rightmove Enquiry form to secure the best chance of viewing.
Council Tax: Band A
Intial Tenancy: Six Months
Sorry No Pets
Viewing
Please contact us on 0151 334 2933 if you wish to arrange a viewing appointment for this property, or require further information.
Energy Performance Certificate
Click here to view the Energy Efficiency Rating and Environmental Impact Rating for this property.
Brennan Ayre O'Neill endeavour to maintain accurate depictions of properties in photos, virtual tours, floor plans and descriptions, however, these are intended only as a guide and purchasers / tenants and must therefore satisfy themselves by personal inspection prior to committing to any contract.
The spacious apartment features a welcoming hallway, a bright living room, and a fitted kitchen equipped with an oven, hob, washing machine and undercounter fridge freezer. The property includes a comfortable double bedroom and a modern bathroom with both a bath and shower.
We anticipate a great deal of interest in this property so please complete a Rightmove Enquiry form to secure the best chance of viewing.
Council Tax: Band A
Intial Tenancy: Six Months
Sorry No Pets
Viewing
Please contact us on 0151 334 2933 if you wish to arrange a viewing appointment for this property, or require further information.
Energy Performance Certificate
Click here to view the Energy Efficiency Rating and Environmental Impact Rating for this property.
Brennan Ayre O'Neill endeavour to maintain accurate depictions of properties in photos, virtual tours, floor plans and descriptions, however, these are intended only as a guide and purchasers / tenants and must therefore satisfy themselves by personal inspection prior to committing to any contract.

