Full Description
We are delighted to present this three bedroom terrace property to the market. Situated on one of Tranmere’s most popular streets, between Victoria Park and Mersey Park, this well-presented home is ready for immediate occupation.
The property features:
- A recently refurbished kitchen
- Modern décor and carpets throughout
- Gas central heating and double glazing for year-round comfort
This is a bright, inviting home that has been thoughtfully finished to create a welcoming living space.
Located centrally in Tranmere, the property is within easy walking distance of shops, regular bus services, and both nearby parks — making it an ideal choice for those seeking convenience and comfort.
Please submit a Rightmove Enquiry form at your earliest availability to secure the best chance of a viewing.
Initial Tenancy: 12 Month
Council Tax: Band A
Viewing
Please contact us on 0151 334 2933 if you wish to arrange a viewing appointment for this property, or require further information.
Energy Performance Certificate
Click here to view the Energy Efficiency Rating and Environmental Impact Rating for this property.
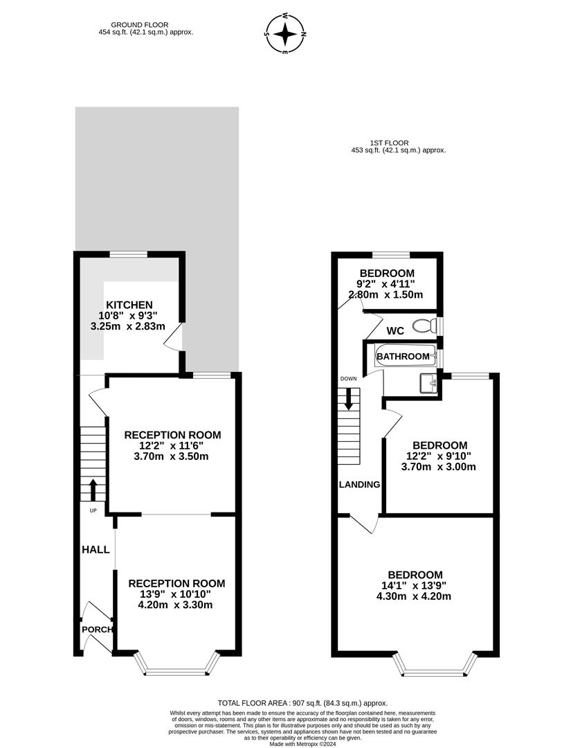
Brennan Ayre O'Neill endeavour to maintain accurate depictions of properties in photos, virtual tours, floor plans and descriptions, however, these are intended only as a guide and purchasers / tenants and must therefore satisfy themselves by personal inspection prior to committing to any contract.
The property features:
- A recently refurbished kitchen
- Modern décor and carpets throughout
- Gas central heating and double glazing for year-round comfort
This is a bright, inviting home that has been thoughtfully finished to create a welcoming living space.
Located centrally in Tranmere, the property is within easy walking distance of shops, regular bus services, and both nearby parks — making it an ideal choice for those seeking convenience and comfort.
Please submit a Rightmove Enquiry form at your earliest availability to secure the best chance of a viewing.
Initial Tenancy: 12 Month
Council Tax: Band A
Viewing
Please contact us on 0151 334 2933 if you wish to arrange a viewing appointment for this property, or require further information.
Energy Performance Certificate
Click here to view the Energy Efficiency Rating and Environmental Impact Rating for this property.
Brennan Ayre O'Neill endeavour to maintain accurate depictions of properties in photos, virtual tours, floor plans and descriptions, however, these are intended only as a guide and purchasers / tenants and must therefore satisfy themselves by personal inspection prior to committing to any contract.

