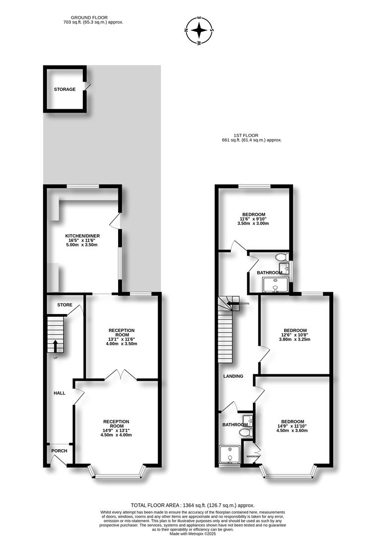
- Disabled facilities: ramp, lift, wet room x 2
- Three double bedroom sizes
- Two wet rooms at first floor
- Very large kitchen/diner
- Two reception rooms
Full Description
This home has been converted for disabled use. That's to say there is a ramp, a disabled parking space out to the front of the house; a lift (serviced) and two first floor wet rooms. (The lift can be removed or the cost for same negotiated for, as required). This is also a much larger three DOUBLE bedroomed terraced home which also comes with an XL kitchen diner, see photos and floor plan...
In addition there are two separate reception rooms and a good sized and welcoming entrance hall.
With gas central heating and double glazing, this larger terraced home has some outstanding features. Furthermore the location along this stretch of Woodchurch Road, opposite the primary school, is perfect for access to most regular amenities. For directions please Sat Nav: CH42 9LJ
Viewing
Please contact us on 0151 608 8586 if you wish to arrange a viewing appointment for this property, or require further information.
Energy Performance Certificate
Click here to view the Energy Efficiency Rating and Environmental Impact Rating for this property.
Brennan Ayre O'Neill endeavour to maintain accurate depictions of properties in photos, virtual tours, floor plans and descriptions, however, these are intended only as a guide and purchasers / tenants and must therefore satisfy themselves by personal inspection prior to committing to any contract.
In addition there are two separate reception rooms and a good sized and welcoming entrance hall.
With gas central heating and double glazing, this larger terraced home has some outstanding features. Furthermore the location along this stretch of Woodchurch Road, opposite the primary school, is perfect for access to most regular amenities. For directions please Sat Nav: CH42 9LJ
Viewing
Please contact us on 0151 608 8586 if you wish to arrange a viewing appointment for this property, or require further information.
Energy Performance Certificate
Click here to view the Energy Efficiency Rating and Environmental Impact Rating for this property.
Brennan Ayre O'Neill endeavour to maintain accurate depictions of properties in photos, virtual tours, floor plans and descriptions, however, these are intended only as a guide and purchasers / tenants and must therefore satisfy themselves by personal inspection prior to committing to any contract.

