- Substantial semi detached house
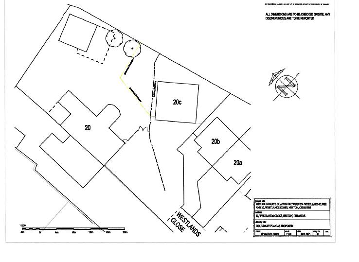
- Together with proportionate garden plot
- Large workshop - for conversion?
- 5 Bedrooms, 2 bath
- 4 reception
- Boot room/utility & Cloaks
- Impressive heating & solar system
- Majority of windows replaced 3 years ago.
- Also 3 year old boiler.
Full Description
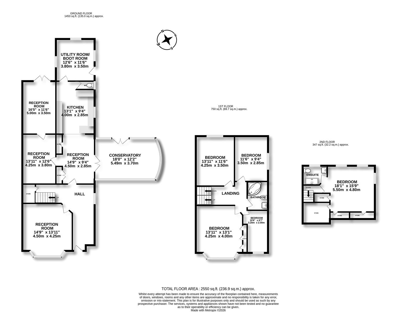
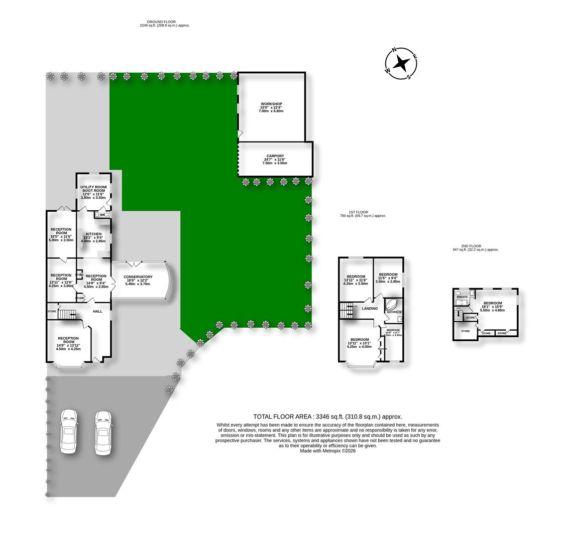
Let us draw your attention immediately to our floor plan below to highlight just how much family accommodation there is to this 2,500 sq foot of semi detached house, (3,300 sq' including workshop and carport); with its five bedrooms, two bathrooms and three reception rooms, (as well as a fabulous, covered and insulated conservatory). Take a moment too to consider the workshop with 'carport' which clearly, to us at least, provides huge opportunities for conversion into more living space - self contained annex perhaps, or similar.Then do please appreciate how proportionate the garden and patio plot is to the accommodation within, together a significantly generous drive for various vehicles. (note our location plan identifying the size of garden plot for illustration purpose).Put together then this home with excellent family space and a generous family garden; does in our view, offer considerable value for money. Especially so as we identify more additional key attractions below; features to look out for on your viewing...One particularly feature to mention is the method of both heating and insulation. The property does have a C rating. Delving further into this and we can see how closer to a B the house reaches. With a considerably modern gas fired central heating boiler together with a two batteried run solar panel system, the figures and returns for any substantial traditional house are impressive.We believe current running costs for Mr & Mrs Client for both gas and electric in the region of £120 per month. In addition to this they are enjoying a figure of approximately £1,800 per annum from the F.I.T; in return for the electricity they provide back to the national grid; (this is an approx figure and subject to daily sunshine) - and that's why you can stand in the kitchen/ breakfast room bare footed enjoying the underfloor heating...
What a thought to look forward to then; warm feet together with next to nil energy costs (depending on size of family plus usage).
In addition, the first floor elevation has been externally insulated and rendered in an Atlas silicon render with the side gable wall externally insulated too. The majority of windows and composite doors (argon filled) were also replaced three years ago.
Let's turn please to the 'workshop'. Some 550 sq feet of space with canopy : hugely tempting to convert into independent accommodation perhaps? Furthermore please do notice the amount of parking available to both the front and side of the house; of the expanse of both patios (two) and lawn. The orientation of both house and outdoor space makes for a very private setting.
Returning to the interior of this impressively proportioned home and first to its wood block floored hallway. A pleasant, welcoming entrance leading on to so much family space. There's a front living room, this super large (and warm) family kitchen with breakfast area; the dining room, and final reception area currently commandeered as the family's 'gym'. The conservatory is of course, main garden side (and south facing). Beyond the kitchen is an enviably large utility/boot room off which are cloakroom facilities ( housing the modern, free standing Worcester combi boiler).
Up at first floor are four bedrooms, with three good 'double' sized, each with a basin and serviced by a combined bathroom, whilst up again to the second floor and you'll find a super spacious primary bedroom with good en suite shower facilities...As we say, plenty of space.
Central to Neston and thus for schools and public transport as well as the village, this is a well 'centred' location. For directions please Sat Nav: CH64 3UA
Viewing
Please contact us on 0151 608 8586 if you wish to arrange a viewing appointment for this property, or require further information.
Energy Performance Certificate
Click here to view the Energy Efficiency Rating and Environmental Impact Rating for this property.
Brennan Ayre O'Neill endeavour to maintain accurate depictions of properties in photos, virtual tours, floor plans and descriptions, however, these are intended only as a guide and purchasers / tenants and must therefore satisfy themselves by personal inspection prior to committing to any contract.
What a thought to look forward to then; warm feet together with next to nil energy costs (depending on size of family plus usage).
In addition, the first floor elevation has been externally insulated and rendered in an Atlas silicon render with the side gable wall externally insulated too. The majority of windows and composite doors (argon filled) were also replaced three years ago.
Let's turn please to the 'workshop'. Some 550 sq feet of space with canopy : hugely tempting to convert into independent accommodation perhaps? Furthermore please do notice the amount of parking available to both the front and side of the house; of the expanse of both patios (two) and lawn. The orientation of both house and outdoor space makes for a very private setting.
Returning to the interior of this impressively proportioned home and first to its wood block floored hallway. A pleasant, welcoming entrance leading on to so much family space. There's a front living room, this super large (and warm) family kitchen with breakfast area; the dining room, and final reception area currently commandeered as the family's 'gym'. The conservatory is of course, main garden side (and south facing). Beyond the kitchen is an enviably large utility/boot room off which are cloakroom facilities ( housing the modern, free standing Worcester combi boiler).
Up at first floor are four bedrooms, with three good 'double' sized, each with a basin and serviced by a combined bathroom, whilst up again to the second floor and you'll find a super spacious primary bedroom with good en suite shower facilities...As we say, plenty of space.
Central to Neston and thus for schools and public transport as well as the village, this is a well 'centred' location. For directions please Sat Nav: CH64 3UA
Viewing
Please contact us on 0151 608 8586 if you wish to arrange a viewing appointment for this property, or require further information.
Energy Performance Certificate
Click here to view the Energy Efficiency Rating and Environmental Impact Rating for this property.
Brennan Ayre O'Neill endeavour to maintain accurate depictions of properties in photos, virtual tours, floor plans and descriptions, however, these are intended only as a guide and purchasers / tenants and must therefore satisfy themselves by personal inspection prior to committing to any contract.

