Full Description
**NOT TO BE MISSED** This immaculate home forms part of the historic RAF base with the added benefit of a South facing rear garden. The property offers spacious accommodation with a open plan kitchen diner, separate lounge with 2 double bedrooms and a white bathroom. Ideal for first time buyers, downsizers and professionals, book your viewing today.It is worth pointing out that this property falls under the Wirral Council tax.
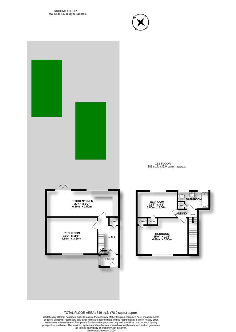
Well positioned off Rivacre Road, Dudley Crescent is a small development, setback with open grassed area whilst this particular property is centrally positioned with ample off road parking and porch which opens into the hallway with stairs on the left, built in cupboard and doors to principal rooms.
NB. This property is not connected to mains gas and the hot water / heating is powered by electric and is on a water meter.
Starting on the left hand side you will find a well proportioned living room with a double glazed window overlooking the front allowing natural light to pour in with inset electric fire and surround.
Making your way to the rear of the property you will find the open plan kitchen diner which spans the full width with dual aspect over the garden inc French doors. A range of wall and base units finished in white with built in appliances, inset sink and complimentary worktops.
Upstairs you will find 2 spacious double bedrooms both offering built in wardrobes with the larger positioned at the front. A modern white bathroom with 3 piece suite including a WC, wash basin and bath with shower over, part tiled walls and built in cupboard. Access to loft with pull down ladder.
Outside you will find a landscaped garden sunny garden enjoying the Southerly aspect with a range of finishes including patio, lawns and stone with fence boundaries and space for shed. You will also find an outside tap and socket.
Please note this property is freehold but there is a ground rent of £53pcm to Encore Estate Management.
Viewing
Please contact us on 0151 343 9060 if you wish to arrange a viewing appointment for this property, or require further information.
Energy Performance Certificate
Click here to view the Energy Efficiency Rating and Environmental Impact Rating for this property.
Brennan Ayre O'Neill endeavour to maintain accurate depictions of properties in photos, virtual tours, floor plans and descriptions, however, these are intended only as a guide and purchasers / tenants and must therefore satisfy themselves by personal inspection prior to committing to any contract.
Well positioned off Rivacre Road, Dudley Crescent is a small development, setback with open grassed area whilst this particular property is centrally positioned with ample off road parking and porch which opens into the hallway with stairs on the left, built in cupboard and doors to principal rooms.
NB. This property is not connected to mains gas and the hot water / heating is powered by electric and is on a water meter.
Starting on the left hand side you will find a well proportioned living room with a double glazed window overlooking the front allowing natural light to pour in with inset electric fire and surround.
Making your way to the rear of the property you will find the open plan kitchen diner which spans the full width with dual aspect over the garden inc French doors. A range of wall and base units finished in white with built in appliances, inset sink and complimentary worktops.
Upstairs you will find 2 spacious double bedrooms both offering built in wardrobes with the larger positioned at the front. A modern white bathroom with 3 piece suite including a WC, wash basin and bath with shower over, part tiled walls and built in cupboard. Access to loft with pull down ladder.
Outside you will find a landscaped garden sunny garden enjoying the Southerly aspect with a range of finishes including patio, lawns and stone with fence boundaries and space for shed. You will also find an outside tap and socket.
Please note this property is freehold but there is a ground rent of £53pcm to Encore Estate Management.
Viewing
Please contact us on 0151 343 9060 if you wish to arrange a viewing appointment for this property, or require further information.
Energy Performance Certificate
Click here to view the Energy Efficiency Rating and Environmental Impact Rating for this property.
Brennan Ayre O'Neill endeavour to maintain accurate depictions of properties in photos, virtual tours, floor plans and descriptions, however, these are intended only as a guide and purchasers / tenants and must therefore satisfy themselves by personal inspection prior to committing to any contract.

