Full Description
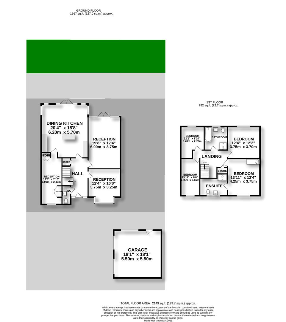
**FAMILY HOME** You are in for a real treat with this one! A stunning family home which has been extensively refurbished in recent years to provide spacious accommodation with a contemporary finish. 3 separate receptions, large living kitchen, 4 bedrooms, 2 bath/ shower rooms, WC and superb gardens with detached double garage. This really does need to be seen to be appreciated.
Well positioned at the end of Hooton Way, well set back from the road with mature screen to the front, ample off road parking with double garage and access to the side. The front entrance is centrally positioned and opens into:
The Accommodation
A true entrance hall which gives you a glimpse into what to expect throughout this property! Contemporary finish with the all important downstairs WC on the left, turned staircase to the first floor, receptions rooms on the right and double doors open ahead into the living kitchen ahead.
Starting with the dining room which is positioned at the front of the property with a square bay window allowing natural light to pour in. Whilst to the rear you will find the living room, which is the larger of the two, with log burner and French doors opening onto the garden.
The USP
An area the family will spend a lot of time! A modern kitchen which offers a wide range of wall and base units finished in grey with contrasting Quartz worktops, integrated appliances and central island with inset sink and a complimentary dining table and open to the a seating area enjoying the aspect over the garden with French doors. A part glazed door leads into the additional reception room which is currently the play / day room but could accomodate the home office with aspect to the front.
Making your way upstairs
The spacious landing provides access to principal rooms.
Master Suite
A spacious bedroom with fitted wardrobes, aspect to the front and connecting door into the en-suite shower room.
Bedrooms
3 further bedrooms, all of which are spacious.
Family Bathroom
A contemporary suite which includes a walk in shower, bath, WC and floating wash basin and built in storage.
Outside
This property just keeps giving! A large patio area to the immediate rear which continues to either side with a BBQ area and step leading to a raised decked seating area whilst the majority is laid to lawn with planted borders and enjoying the mature woodland to the rear and side.
Viewing
Please contact us on 0151 343 9060 if you wish to arrange a viewing appointment for this property, or require further information.
Energy Performance Certificate
Click here to view the Energy Efficiency Rating and Environmental Impact Rating for this property.
Brennan Ayre O'Neill endeavour to maintain accurate depictions of properties in photos, virtual tours, floor plans and descriptions, however, these are intended only as a guide and purchasers / tenants and must therefore satisfy themselves by personal inspection prior to committing to any contract.
Well positioned at the end of Hooton Way, well set back from the road with mature screen to the front, ample off road parking with double garage and access to the side. The front entrance is centrally positioned and opens into:
The Accommodation
A true entrance hall which gives you a glimpse into what to expect throughout this property! Contemporary finish with the all important downstairs WC on the left, turned staircase to the first floor, receptions rooms on the right and double doors open ahead into the living kitchen ahead.
Starting with the dining room which is positioned at the front of the property with a square bay window allowing natural light to pour in. Whilst to the rear you will find the living room, which is the larger of the two, with log burner and French doors opening onto the garden.
The USP
An area the family will spend a lot of time! A modern kitchen which offers a wide range of wall and base units finished in grey with contrasting Quartz worktops, integrated appliances and central island with inset sink and a complimentary dining table and open to the a seating area enjoying the aspect over the garden with French doors. A part glazed door leads into the additional reception room which is currently the play / day room but could accomodate the home office with aspect to the front.
Making your way upstairs
The spacious landing provides access to principal rooms.
Master Suite
A spacious bedroom with fitted wardrobes, aspect to the front and connecting door into the en-suite shower room.
Bedrooms
3 further bedrooms, all of which are spacious.
Family Bathroom
A contemporary suite which includes a walk in shower, bath, WC and floating wash basin and built in storage.
Outside
This property just keeps giving! A large patio area to the immediate rear which continues to either side with a BBQ area and step leading to a raised decked seating area whilst the majority is laid to lawn with planted borders and enjoying the mature woodland to the rear and side.
Viewing
Please contact us on 0151 343 9060 if you wish to arrange a viewing appointment for this property, or require further information.
Energy Performance Certificate
Click here to view the Energy Efficiency Rating and Environmental Impact Rating for this property.
Brennan Ayre O'Neill endeavour to maintain accurate depictions of properties in photos, virtual tours, floor plans and descriptions, however, these are intended only as a guide and purchasers / tenants and must therefore satisfy themselves by personal inspection prior to committing to any contract.

