- Exceptionally comfortable home
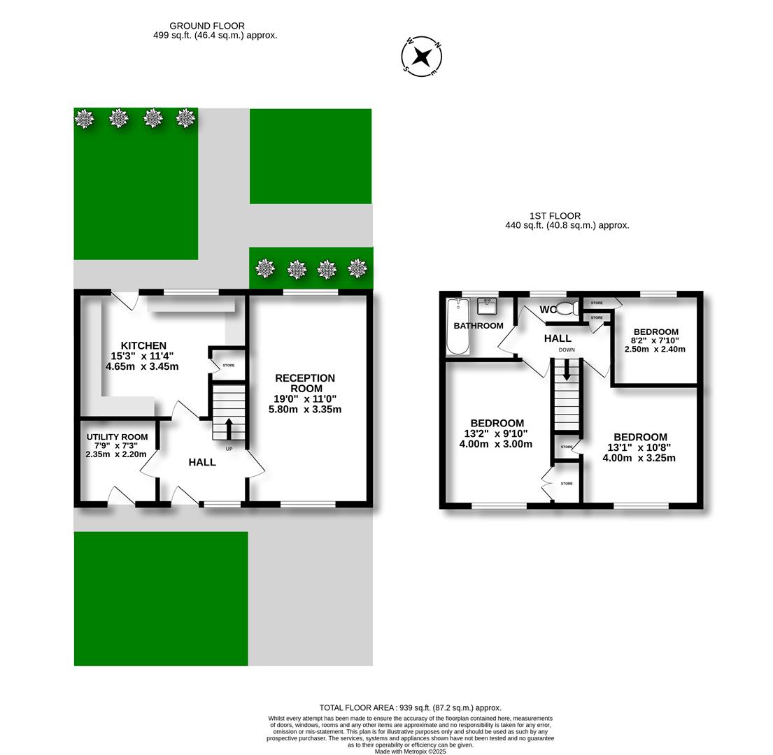
- With three bedrooms
- Beautiful new kitchen and bathroom
- A square utility like room ready for home office/wet room etc perhaps
- A great 'through' living room
- Super smart laid tiled patio/garden
- Allotment view to the front
- Off the main road, so quiet
- Short walk to the primary school and Oxton Village
Full Description
This is a super comfortable and beautifully presented terraced home with gardens front and rear, a view onto the allotments in Oxton as well as being nicely tucked away off Fairview road and thus away from the traffic into and out of Oxton village.We trust our brief slide show of photographs offer a suitably mouth watering taste for you to want to come and view this home - because, well you should. It's comfortable, as we say, it's bright and tastefully 'done' in all aspects and its a great location too...
The kitchen and bathroom and tiled patio are all new features making this home ready to enjoy. Double glazing, gas central heating, nicely proportioned accommodation combine to make an enviable first time buyer's
To find Fairview Close, look opposite the primary school and head up away from Fairview Road and the Close is just tucked away there. A five minute walk to Storeton Road, ten to Oxton Village. Sat Nav: CH43 5US for directions please.
Viewing
Please contact us on 0151 608 8586 if you wish to arrange a viewing appointment for this property, or require further information.
Energy Performance Certificate
Click here to view the Energy Efficiency Rating and Environmental Impact Rating for this property.
Brennan Ayre O'Neill endeavour to maintain accurate depictions of properties in photos, virtual tours, floor plans and descriptions, however, these are intended only as a guide and purchasers / tenants and must therefore satisfy themselves by personal inspection prior to committing to any contract.
The kitchen and bathroom and tiled patio are all new features making this home ready to enjoy. Double glazing, gas central heating, nicely proportioned accommodation combine to make an enviable first time buyer's
To find Fairview Close, look opposite the primary school and head up away from Fairview Road and the Close is just tucked away there. A five minute walk to Storeton Road, ten to Oxton Village. Sat Nav: CH43 5US for directions please.
Viewing
Please contact us on 0151 608 8586 if you wish to arrange a viewing appointment for this property, or require further information.
Energy Performance Certificate
Click here to view the Energy Efficiency Rating and Environmental Impact Rating for this property.
Brennan Ayre O'Neill endeavour to maintain accurate depictions of properties in photos, virtual tours, floor plans and descriptions, however, these are intended only as a guide and purchasers / tenants and must therefore satisfy themselves by personal inspection prior to committing to any contract.

