- Much larger than expected 80's build detached house
- With 4 nicely sized bedrooms
- XXL large bathroom (4ps)
- Cloakroom
- Separate kitchen
- Two reception rooms
- Substantial garden plot
- NO onward property CHAIN
Full Description
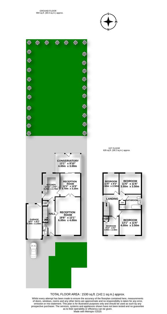
There's no question in our mind, from our years in the property industry, that this particular model and age of detached house offers a hugely generous floor area. For that reason we would immediately guide you to our floor plan below. As it happens, this property also enjoys a considerably large garden plot.We were particularly impressed with both the depth and width of the front living room together with the proportioned of each and every one of the four bedrooms, service by an XXL large bathroom (four piece suite).Back at ground level there's a sizeable cloakroom suite off the hall whilst to the rear of the hall is the kitchen. This was fitted by John Lewis (formerly George Henry Lees) and offers a robust selection of hardy kitchenware together with an array of integrated appliances...
A reasonably sized and long garage (electric door) has access to the rear patio nearest the kitchen. There is a lean to of a conservatory off the dining quarters of the house sitting amidst a patio area of considerable meterage.
The rear garden plot is a fabulous size; orientation too is near perfect, being south west facing. The garden is tiered and drops into a self management woodland area beyond the main lawned area. Neither the property nor its garden is overlooked from the rear at all.
You can see that the property is vacant and as keyholders we can usually a request for you to view at reasonably short notice. given its vacant status we can also confirm there will be no unnecessary legal delays from our client.
You'll notice the shade on the front of the house on a clear day with our photo taken late November. It denotes that orientation with the benefit of the sun at the rear of the house most of the day.
Tucked neatly at the top of this so small development of eighties housing, Doddleston Close stands central to middle Noctorum. Handy for all the usual conveniences including a selection of nearby schools. For your directions please sat nav: CH43 9QZ
Viewing
Please contact us on 0151 608 8586 if you wish to arrange a viewing appointment for this property, or require further information.
Energy Performance Certificate
Click here to view the Energy Efficiency Rating and Environmental Impact Rating for this property.
Brennan Ayre O'Neill endeavour to maintain accurate depictions of properties in photos, virtual tours, floor plans and descriptions, however, these are intended only as a guide and purchasers / tenants and must therefore satisfy themselves by personal inspection prior to committing to any contract.
A reasonably sized and long garage (electric door) has access to the rear patio nearest the kitchen. There is a lean to of a conservatory off the dining quarters of the house sitting amidst a patio area of considerable meterage.
The rear garden plot is a fabulous size; orientation too is near perfect, being south west facing. The garden is tiered and drops into a self management woodland area beyond the main lawned area. Neither the property nor its garden is overlooked from the rear at all.
You can see that the property is vacant and as keyholders we can usually a request for you to view at reasonably short notice. given its vacant status we can also confirm there will be no unnecessary legal delays from our client.
You'll notice the shade on the front of the house on a clear day with our photo taken late November. It denotes that orientation with the benefit of the sun at the rear of the house most of the day.
Tucked neatly at the top of this so small development of eighties housing, Doddleston Close stands central to middle Noctorum. Handy for all the usual conveniences including a selection of nearby schools. For your directions please sat nav: CH43 9QZ
Viewing
Please contact us on 0151 608 8586 if you wish to arrange a viewing appointment for this property, or require further information.
Energy Performance Certificate
Click here to view the Energy Efficiency Rating and Environmental Impact Rating for this property.
Brennan Ayre O'Neill endeavour to maintain accurate depictions of properties in photos, virtual tours, floor plans and descriptions, however, these are intended only as a guide and purchasers / tenants and must therefore satisfy themselves by personal inspection prior to committing to any contract.

