- A Traditional 3 Bedroomed Semi
- Pressed Concrete Drive
- Top Of The Close, Pedestrian Access to Bus, Station & Shops
- Refurbishment Required
- Vacant With No Property Chain
Full Description
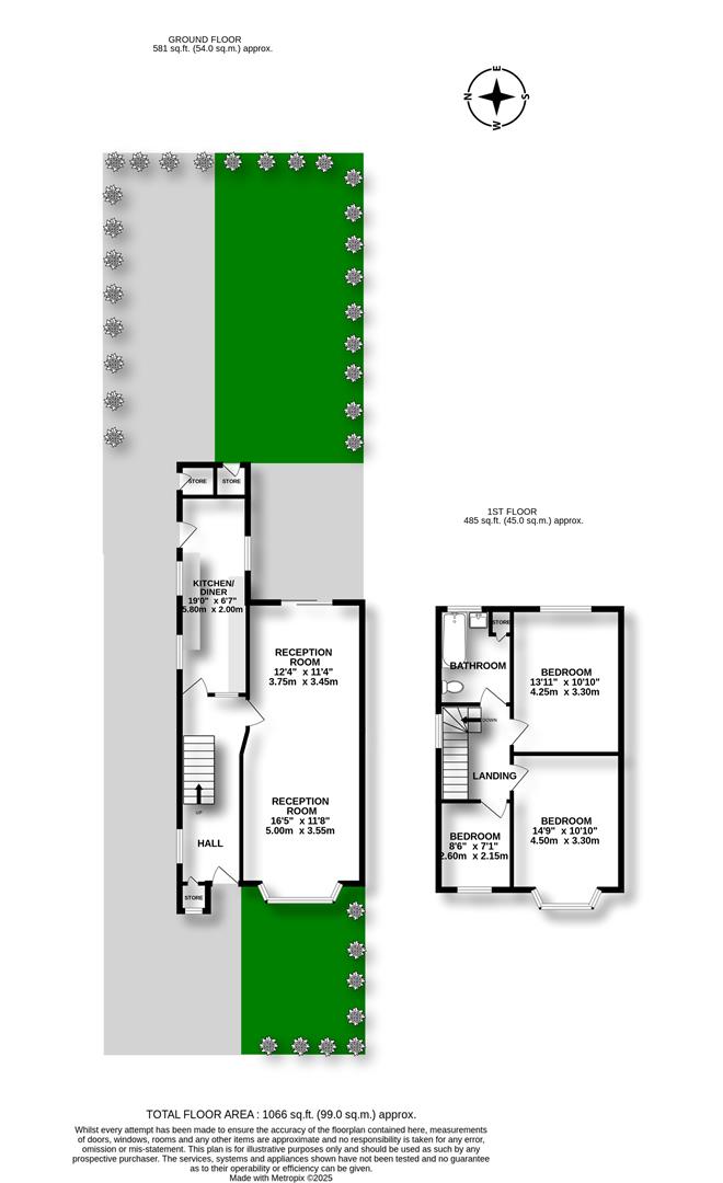
Tucked up at the top of this cul de sac this traditional three bedroomed semi also has the benefit of a pedestrian access to the main road for schools, buses, the station and a row of shops nearby.This handsome semi is in need of an upgrade and refurbishment. With a super sized through living and dining room, (with potential to make separate), as well as a nicely sized rear kitchen (with outhouses on the other side for future development); this semi is bound to prove popular.There are three good bedrooms and a fairly large combined bathroom at first floor whilst outdoors you'll find a pressed concrete drive and a medium sized and private garden to the rear.There is no onward property chain to this sale. Please call for a viewing.
Viewing
Please contact us on 0151 608 8586 if you wish to arrange a viewing appointment for this property, or require further information.
Energy Performance Certificate
Click here to view the Energy Efficiency Rating and Environmental Impact Rating for this property.
Brennan Ayre O'Neill endeavour to maintain accurate depictions of properties in photos, virtual tours, floor plans and descriptions, however, these are intended only as a guide and purchasers / tenants and must therefore satisfy themselves by personal inspection prior to committing to any contract.
Viewing
Please contact us on 0151 608 8586 if you wish to arrange a viewing appointment for this property, or require further information.
Energy Performance Certificate
Click here to view the Energy Efficiency Rating and Environmental Impact Rating for this property.
Brennan Ayre O'Neill endeavour to maintain accurate depictions of properties in photos, virtual tours, floor plans and descriptions, however, these are intended only as a guide and purchasers / tenants and must therefore satisfy themselves by personal inspection prior to committing to any contract.

