Full Description
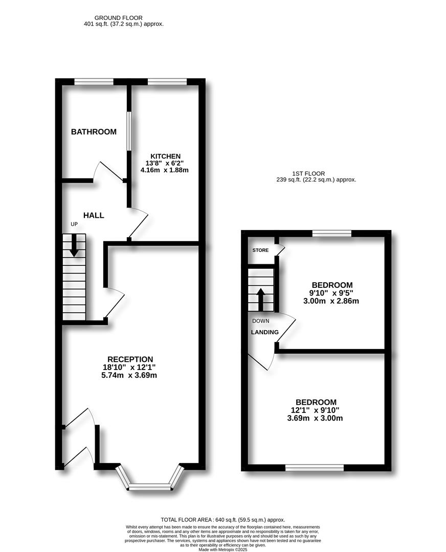
**NO CHAIN** This two-bedroom property provides spacious accommodation which includes a through lounge diner with bay window to the front allowing natural light to pour in, handy understairs cupboard and connecting door into the inner hall. From here you will find the breakfast kitchen on the right which offers a range units with space for appliances, breakfast bar and door to rear yard. You will also find the white bathroom (on the ground floor) having a bath with shower above, wash basin and WC. Making your way upstairs the first floor provides two well proportioned double bedrooms. Local amenities including shops, parks and schools within walking distance and commuting distance of Liverpool and Chester, this property has a lot to offer.
Viewing
Please contact us on 0151 343 9060 if you wish to arrange a viewing appointment for this property, or require further information.
Energy Performance Certificate
Click here to view the Energy Efficiency Rating and Environmental Impact Rating for this property.
Brennan Ayre O'Neill endeavour to maintain accurate depictions of properties in photos, virtual tours, floor plans and descriptions, however, these are intended only as a guide and purchasers / tenants and must therefore satisfy themselves by personal inspection prior to committing to any contract.
Viewing
Please contact us on 0151 343 9060 if you wish to arrange a viewing appointment for this property, or require further information.
Energy Performance Certificate
Click here to view the Energy Efficiency Rating and Environmental Impact Rating for this property.
Brennan Ayre O'Neill endeavour to maintain accurate depictions of properties in photos, virtual tours, floor plans and descriptions, however, these are intended only as a guide and purchasers / tenants and must therefore satisfy themselves by personal inspection prior to committing to any contract.

