Full Description
ATTENTION - This end terrace property offers spacious accommodation with the addition of a CONSERVATORY to the rear. MOVE IN READY with off road parking, 2 reception rooms and a breakfast kitchen. whilst upstairs offers 2 bedrooms and separate white bathroom & WC. Enclosed garden to the rear with AstroTurf... Viewing advised.
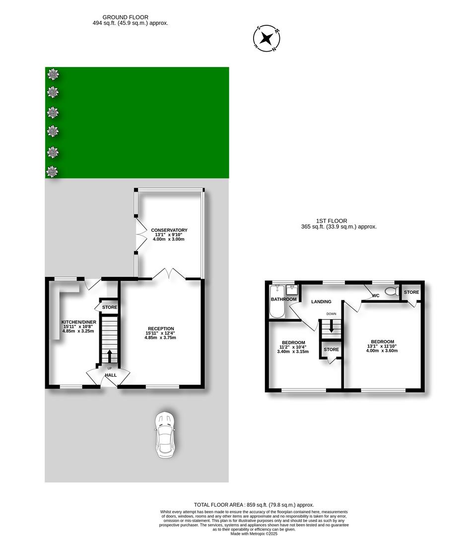
Located within walking distance of local shops and transport links, the property forms the end terrace with off road parking to the front, central entrance with uPVC front door opening into the hallway where you have access to principle rooms on either side and stairs to the first floor ahead.
On the right hand side a well proportioned lounge with central fireplace and French doors opening into the Conservatory which provides extra reception space, overlooking the garden with French doors.
The breakfast kitchen can be found on the left hand side of the hallway and offers a range of wall and base units finished in white complimentary work top, space for appliances, under stairs store and wall mounted boiler. Aspect and door opening onto the the garden.
Making your way upstairs the landing provides access to principle rooms which includes 2 bedrooms, bathroom and WC.
Outside you will find a patio area which opens up to the AstroTurf lawn with fence boundaries and gated access to the side with mature screen providing privacy.
Viewing
Please contact us on 0151 343 9060 if you wish to arrange a viewing appointment for this property, or require further information.
Energy Performance Certificate
Click here to view the Energy Efficiency Rating and Environmental Impact Rating for this property.
Brennan Ayre O'Neill endeavour to maintain accurate depictions of properties in photos, virtual tours, floor plans and descriptions, however, these are intended only as a guide and purchasers / tenants and must therefore satisfy themselves by personal inspection prior to committing to any contract.
Located within walking distance of local shops and transport links, the property forms the end terrace with off road parking to the front, central entrance with uPVC front door opening into the hallway where you have access to principle rooms on either side and stairs to the first floor ahead.
On the right hand side a well proportioned lounge with central fireplace and French doors opening into the Conservatory which provides extra reception space, overlooking the garden with French doors.
The breakfast kitchen can be found on the left hand side of the hallway and offers a range of wall and base units finished in white complimentary work top, space for appliances, under stairs store and wall mounted boiler. Aspect and door opening onto the the garden.
Making your way upstairs the landing provides access to principle rooms which includes 2 bedrooms, bathroom and WC.
Outside you will find a patio area which opens up to the AstroTurf lawn with fence boundaries and gated access to the side with mature screen providing privacy.
Viewing
Please contact us on 0151 343 9060 if you wish to arrange a viewing appointment for this property, or require further information.
Energy Performance Certificate
Click here to view the Energy Efficiency Rating and Environmental Impact Rating for this property.
Brennan Ayre O'Neill endeavour to maintain accurate depictions of properties in photos, virtual tours, floor plans and descriptions, however, these are intended only as a guide and purchasers / tenants and must therefore satisfy themselves by personal inspection prior to committing to any contract.

