Full Description
**STOP your search.** Opportunities to secure a home of this calibre, scale, and location are exceedingly rare. From the moment you step inside, this exquisite family residence captivates with its elegant period features, seamlessly complemented by contemporary fittings and an exceptional level of finish throughout. Cherished by the current owners, this remarkable home is now ready to welcome its next chapter—offering the opportunity for a new family to create lasting memories of their own.
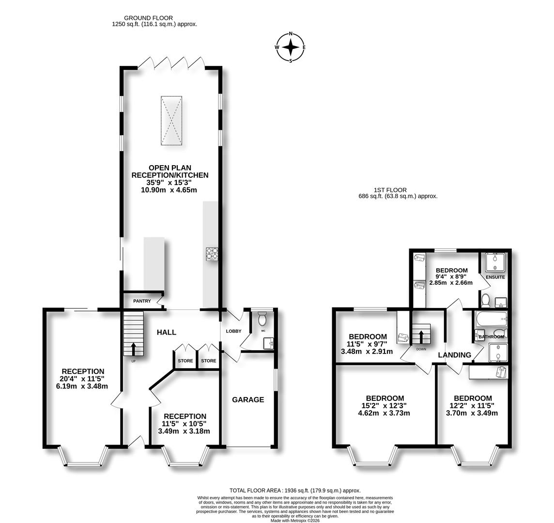
Dale Road can be found off Plymyard Avenue, a no through road where you will find a collection of substantial family homes with this particular positioned on the right hand side with a block driveway proving ample parking with the garage on the right and a central canopy entrance with stepped threshold and a contemporary door leading into the accommodation.
he 1930s homes offer wonderful proportions and it starts with the entrance hall with its tuned staircase ahead (storage below) period detailing and access to principle rooms. Glazed doors lead into both receptions (left and right) allowing borrowed light to pour through.
On the right you have the square reception offering a more intimate space for relaxing or ideal work space with bay window to the front whilst on the left you have the well proportioned lounge enjoying the dual aspect to the front with bay window an rear with patio doors overlooking the garden allowing natural light to flood in, with cosy decor which includes a feature wood block wall, inset gas fire with stone surround.
**The USP — simply jaw-dropping.**
Take a moment to fully appreciate the scale and versatility of this outstanding space. Open to the reception hall with a beautifully designed kitchen awaits, where every detail has been carefully considered—from elegant curved corner units and complementary Granite worktops to the generous peninsular breakfast bar.
The extension opens seamlessly to the rear, creating stunning reception space, featuring full height glazing, bi-fold and sliding doors opening onto the garden and patio areas.
This is the heart of the home - a space designed for every occasion. Whether preparing dinner while the children complete their homework, enjoying a relaxed Sunday afternoon, or hosting a large celebration, it accommodates it all with ease.
A connecting door leads to the rear porch, WC and integral garage with utility space.
As you make your way through this beautiful home, you will fall in love with it!
Making your way upstairs with a spacious landing which provides access to principal rooms, including 4 bedrooms and 2 bath/shower rooms - all with an exact finish and attention to detail.
Stunning Contemporary Garden and Outdoor Living Space
This property boasts a beautifully landscaped garden designed for both relaxation and entertaining. A generous stone patio extends from the rear of the house, offering the perfect spot for al fresco dining and seamless indoor-outdoor living through large sliding glass door. Stepping down to the lawn which is framed by mature trees and lush planting, creating a private and tranquil space.
The garden features thoughtfully arranged zones, including a stylish raised seating area. A mix of gravel and paved pathways provide easy access and a contemporary finish.
The rear elevation of the home combines classic architecture with a modern extension clad in natural timber, giving a warm and elegant aesthetic. Additional patio space adjacent to the extension offers a more intimate setting, perfect for morning coffee or quiet relaxation.
This outdoor space is a true highlight of the property - offering a blend of design and functionality.
Viewing
Please contact us on 0151 343 9060 if you wish to arrange a viewing appointment for this property, or require further information.
Energy Performance Certificate
Click here to view the Energy Efficiency Rating and Environmental Impact Rating for this property.
Brennan Ayre O'Neill endeavour to maintain accurate depictions of properties in photos, virtual tours, floor plans and descriptions, however, these are intended only as a guide and purchasers / tenants and must therefore satisfy themselves by personal inspection prior to committing to any contract.
Dale Road can be found off Plymyard Avenue, a no through road where you will find a collection of substantial family homes with this particular positioned on the right hand side with a block driveway proving ample parking with the garage on the right and a central canopy entrance with stepped threshold and a contemporary door leading into the accommodation.
he 1930s homes offer wonderful proportions and it starts with the entrance hall with its tuned staircase ahead (storage below) period detailing and access to principle rooms. Glazed doors lead into both receptions (left and right) allowing borrowed light to pour through.
On the right you have the square reception offering a more intimate space for relaxing or ideal work space with bay window to the front whilst on the left you have the well proportioned lounge enjoying the dual aspect to the front with bay window an rear with patio doors overlooking the garden allowing natural light to flood in, with cosy decor which includes a feature wood block wall, inset gas fire with stone surround.
**The USP — simply jaw-dropping.**
Take a moment to fully appreciate the scale and versatility of this outstanding space. Open to the reception hall with a beautifully designed kitchen awaits, where every detail has been carefully considered—from elegant curved corner units and complementary Granite worktops to the generous peninsular breakfast bar.
The extension opens seamlessly to the rear, creating stunning reception space, featuring full height glazing, bi-fold and sliding doors opening onto the garden and patio areas.
This is the heart of the home - a space designed for every occasion. Whether preparing dinner while the children complete their homework, enjoying a relaxed Sunday afternoon, or hosting a large celebration, it accommodates it all with ease.
A connecting door leads to the rear porch, WC and integral garage with utility space.
As you make your way through this beautiful home, you will fall in love with it!
Making your way upstairs with a spacious landing which provides access to principal rooms, including 4 bedrooms and 2 bath/shower rooms - all with an exact finish and attention to detail.
Stunning Contemporary Garden and Outdoor Living Space
This property boasts a beautifully landscaped garden designed for both relaxation and entertaining. A generous stone patio extends from the rear of the house, offering the perfect spot for al fresco dining and seamless indoor-outdoor living through large sliding glass door. Stepping down to the lawn which is framed by mature trees and lush planting, creating a private and tranquil space.
The garden features thoughtfully arranged zones, including a stylish raised seating area. A mix of gravel and paved pathways provide easy access and a contemporary finish.
The rear elevation of the home combines classic architecture with a modern extension clad in natural timber, giving a warm and elegant aesthetic. Additional patio space adjacent to the extension offers a more intimate setting, perfect for morning coffee or quiet relaxation.
This outdoor space is a true highlight of the property - offering a blend of design and functionality.
Viewing
Please contact us on 0151 343 9060 if you wish to arrange a viewing appointment for this property, or require further information.
Energy Performance Certificate
Click here to view the Energy Efficiency Rating and Environmental Impact Rating for this property.
Brennan Ayre O'Neill endeavour to maintain accurate depictions of properties in photos, virtual tours, floor plans and descriptions, however, these are intended only as a guide and purchasers / tenants and must therefore satisfy themselves by personal inspection prior to committing to any contract.

