Full Description
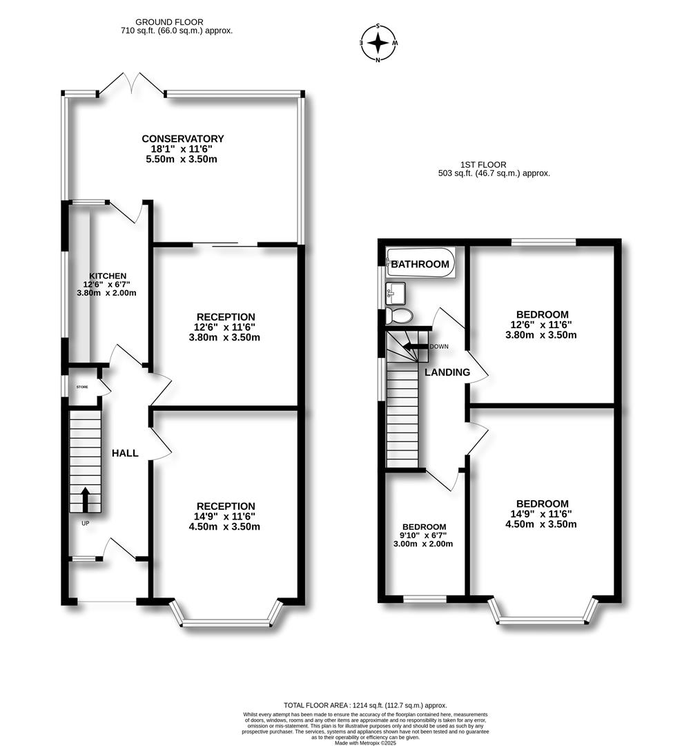
This well-proportioned property will suit a number of buyers from families, first time movers, or downsizers looking to add their own personal touch.Ideally located close to a range of local amenities, sought-after schools, and excellent transport links, including both train and bus services.Inside, the home features three versatile reception rooms, a fitted kitchen, with 3 bedrooms and a family bathroom. Outside, the property boasts a lovely sunny rear garden with the majority laid to lawn with fence boundaries and mature screen. You will also find a garage with off-road parking to the front.With scope to update and improve, this property is a fantastic opportunity to create a home to your own taste and specification. The property does offer gas central heating and double glazing.Viewing is highly recommended – contact us today to arrange your appointment.
Viewing
Please contact us on 0151 343 9060 if you wish to arrange a viewing appointment for this property, or require further information.
Energy Performance Certificate
Click here to view the Energy Efficiency Rating and Environmental Impact Rating for this property.
Brennan Ayre O'Neill endeavour to maintain accurate depictions of properties in photos, virtual tours, floor plans and descriptions, however, these are intended only as a guide and purchasers / tenants and must therefore satisfy themselves by personal inspection prior to committing to any contract.
Viewing
Please contact us on 0151 343 9060 if you wish to arrange a viewing appointment for this property, or require further information.
Energy Performance Certificate
Click here to view the Energy Efficiency Rating and Environmental Impact Rating for this property.
Brennan Ayre O'Neill endeavour to maintain accurate depictions of properties in photos, virtual tours, floor plans and descriptions, however, these are intended only as a guide and purchasers / tenants and must therefore satisfy themselves by personal inspection prior to committing to any contract.

