Full Description
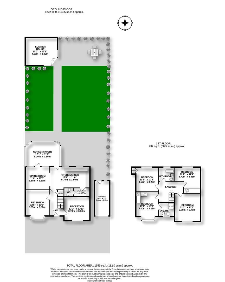
**VIEWING ADVISED** Wow and WOW again! This property has so much to offer and needs to be see to be appreciated. If your looking for a great family home with flexible accommodation and a number of extras, look no further! Offering 4 receptions, extended kitchen, utility and WC whilst upstairs 4 double bedrooms, family bathroom and en-suite shower. Whilst outside you will find a large garden with open aspect to the side, detached garden room / home office and ample parking.
Approach
For those that dont know, Raeburn Avenue is a lovely tree lined street with predominately traditional 1930s semis on either side. This particular property has the benefit of sitting on the corner plot and offers a 2 story side extension.
You will find ample off road parking at the front with access to the side and a central entrance.
From the hallway you have access to principle rooms and stairs to the first floor. Starting on the right hand side you will find the sitting room / snug which forms part of the extension offering well proportioned accommodation and benefitting from a built in media wall.
On the left of the hall you have the another well proportioned reception room with bay window to the front allowing natural light pour in. Making your way to the rear you will find the dining room off the kitchen which connects to the large conservatory at the rear with French doors opening onto the garden. Connecting door back into the kitchen.
Extended Kitchen
The kitchen extends to the side and provides a wide range of white wall and base units with contrasting worktop, space for appliances and integrated oven and hob with aspect to the rear. Connecting door leads into the utility room with pluming for white goods, wall mounted boiler and connecting door to the downstairs WC.
Making your way upstairs
The landing splits to the left and right providing access to principle rooms.
Bedrooms
Positioned at the front of the property you will find the master suite offering a well proportioned double bedroom with fitted wardrobes and en-suite shower room off. You are spoilt for choice, 3 further double bedrooms with two positioned at the rear and one to the front.
Family Bathroom
A modern white suite incorporating low level flush toilet, wash hand basin and panelled bath with shower above, tiled walls and towel rail and window to the rear.
Garden
A family garden to go with this family home. Patio area to the immediate rear with a meandering path leading to the raised decked area where you will find the garden room which is currently utilised as a bar but could easily be a home office with its own electric, light and power including Wi-Fi. The majority of the garden is laid to lawn with planted borders and fence / brick boundaries. Access to the side with pre-fabricated garage.
Viewing
Please contact us on 0151 343 9060 if you wish to arrange a viewing appointment for this property, or require further information.
Energy Performance Certificate
Click here to view the Energy Efficiency Rating and Environmental Impact Rating for this property.
Brennan Ayre O'Neill endeavour to maintain accurate depictions of properties in photos, virtual tours, floor plans and descriptions, however, these are intended only as a guide and purchasers / tenants and must therefore satisfy themselves by personal inspection prior to committing to any contract.
Approach
For those that dont know, Raeburn Avenue is a lovely tree lined street with predominately traditional 1930s semis on either side. This particular property has the benefit of sitting on the corner plot and offers a 2 story side extension.
You will find ample off road parking at the front with access to the side and a central entrance.
From the hallway you have access to principle rooms and stairs to the first floor. Starting on the right hand side you will find the sitting room / snug which forms part of the extension offering well proportioned accommodation and benefitting from a built in media wall.
On the left of the hall you have the another well proportioned reception room with bay window to the front allowing natural light pour in. Making your way to the rear you will find the dining room off the kitchen which connects to the large conservatory at the rear with French doors opening onto the garden. Connecting door back into the kitchen.
Extended Kitchen
The kitchen extends to the side and provides a wide range of white wall and base units with contrasting worktop, space for appliances and integrated oven and hob with aspect to the rear. Connecting door leads into the utility room with pluming for white goods, wall mounted boiler and connecting door to the downstairs WC.
Making your way upstairs
The landing splits to the left and right providing access to principle rooms.
Bedrooms
Positioned at the front of the property you will find the master suite offering a well proportioned double bedroom with fitted wardrobes and en-suite shower room off. You are spoilt for choice, 3 further double bedrooms with two positioned at the rear and one to the front.
Family Bathroom
A modern white suite incorporating low level flush toilet, wash hand basin and panelled bath with shower above, tiled walls and towel rail and window to the rear.
Garden
A family garden to go with this family home. Patio area to the immediate rear with a meandering path leading to the raised decked area where you will find the garden room which is currently utilised as a bar but could easily be a home office with its own electric, light and power including Wi-Fi. The majority of the garden is laid to lawn with planted borders and fence / brick boundaries. Access to the side with pre-fabricated garage.
Viewing
Please contact us on 0151 343 9060 if you wish to arrange a viewing appointment for this property, or require further information.
Energy Performance Certificate
Click here to view the Energy Efficiency Rating and Environmental Impact Rating for this property.
Brennan Ayre O'Neill endeavour to maintain accurate depictions of properties in photos, virtual tours, floor plans and descriptions, however, these are intended only as a guide and purchasers / tenants and must therefore satisfy themselves by personal inspection prior to committing to any contract.

