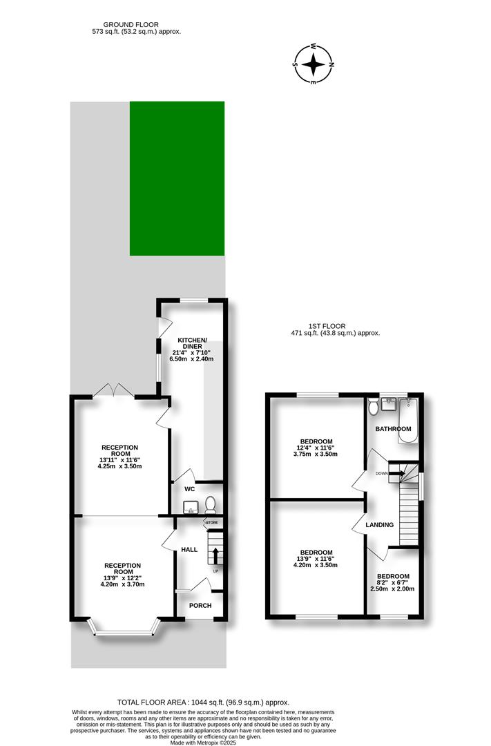
- A beautiful home
- Recently refurbished 3 Bed semi
- Has central heating. electrics
- Fab integrated new kitchen & bathroom
- South facing rear garden and patio
- New electrics, heating, windows & doors
- Easy to walk to Bidston Av Primary and the bus for town
Full Description
We've found you a SHOW HOUSE to start the new year with. It's an absolute dream of a house. It's hugely comfortable, freshly upgraded with a new electrical installation, new pvc windows, new doors and with a brand new central heating system too, decorated and in such a tasteful style too and with a very attractive new kitchen (with appliances) and new bathroom - AND all for the owners pleasure however, alas work takes them further afield. So step in, view as quickly as you can, for this especially welcoming and immaculate home READY TO MOVE INTO won't be around a for sale for long this new year... Just a few features to look out for in this five star rated three bedroomed semi: this super charming as well as practical in design, new fitted kitchen with breakfast area; a large cloakroom with loo and space and plumbing for that noisy washing machine (tucked away from the kitchen allowing more unit space too); an absolutely gorgeous bathroom. There's also a new wood burning stove in the living room.And so after you've taken all that in please don't forget to look out at the south facing and very private rear garden and patio area too...
For your directions Sat Nav: CH41 0EH. Should you make your offer please bear in mind our client requires 4 weeks between exchanging contracts and completion.
Viewing
Please contact us on 0151 608 8586 if you wish to arrange a viewing appointment for this property, or require further information.
Energy Performance Certificate
Click here to view the Energy Efficiency Rating and Environmental Impact Rating for this property.
Brennan Ayre O'Neill endeavour to maintain accurate depictions of properties in photos, virtual tours, floor plans and descriptions, however, these are intended only as a guide and purchasers / tenants and must therefore satisfy themselves by personal inspection prior to committing to any contract.
For your directions Sat Nav: CH41 0EH. Should you make your offer please bear in mind our client requires 4 weeks between exchanging contracts and completion.
Viewing
Please contact us on 0151 608 8586 if you wish to arrange a viewing appointment for this property, or require further information.
Energy Performance Certificate
Click here to view the Energy Efficiency Rating and Environmental Impact Rating for this property.
Brennan Ayre O'Neill endeavour to maintain accurate depictions of properties in photos, virtual tours, floor plans and descriptions, however, these are intended only as a guide and purchasers / tenants and must therefore satisfy themselves by personal inspection prior to committing to any contract.

