Full Description
**NO CHAIN** This semi detached family home is well positioned on the left hand side of Craigleigh Grove enjoying the SOUTHERLY aspect to the rear with off road parking to the front. The EXTENDED accommodation includes a separate dining room to the front, through lounge to the rear, fitted kitchen and downstairs WC. Upstairs you will find 3 bedrooms and a shower room. Whilst to the rear you have large garden which is mainly laid to lawn but offers patio area, garage and planted borders with a mature screen to the rear. This property offers huge potential and will benefit from some upgrading to make your own, that said it does offer gas central heating and double glazing. A must see to appreciate the potential.
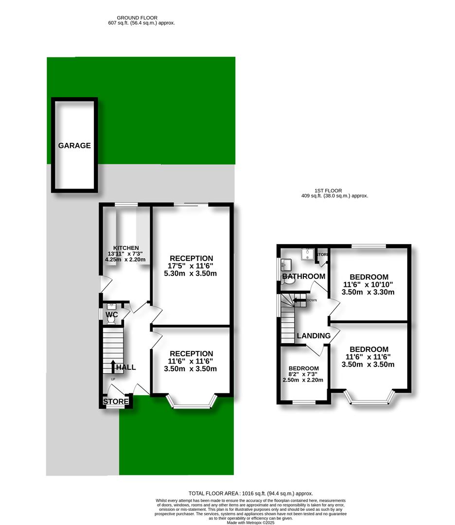
A recessed porch leads into the hallway which provides access to principal rooms including the understairs WC, cloaks cupboard and stairs to the upper floor.
The separate dining room has a front aspect with bay window allowing natural light to pour in. Whilst the extended lounge enjoys the aspect over the rear garden with French doors. Finally on the ground floor you have the extended kitchen which offers a range of units with space for appliances, aspect to the rear and door to side. You will also find the wall mounted gas boiler.
Making your way upstairs you have a bright landing with a picture window to the side and access to all rooms which includes 3 bedrooms and toilet/ shower room.
This property comes with a superb mature garden enjoying the Southerly aspect. Mainly laid to lawn with planted borders, fruit trees and access to the side with garage. Huge potential to create you perfect garden, vegetable patch or even add a garden room/ cabin... plenty of space.
Viewing
Please contact us on 0151 343 9060 if you wish to arrange a viewing appointment for this property, or require further information.
Energy Performance Certificate
Click here to view the Energy Efficiency Rating and Environmental Impact Rating for this property.
Brennan Ayre O'Neill endeavour to maintain accurate depictions of properties in photos, virtual tours, floor plans and descriptions, however, these are intended only as a guide and purchasers / tenants and must therefore satisfy themselves by personal inspection prior to committing to any contract.
A recessed porch leads into the hallway which provides access to principal rooms including the understairs WC, cloaks cupboard and stairs to the upper floor.
The separate dining room has a front aspect with bay window allowing natural light to pour in. Whilst the extended lounge enjoys the aspect over the rear garden with French doors. Finally on the ground floor you have the extended kitchen which offers a range of units with space for appliances, aspect to the rear and door to side. You will also find the wall mounted gas boiler.
Making your way upstairs you have a bright landing with a picture window to the side and access to all rooms which includes 3 bedrooms and toilet/ shower room.
This property comes with a superb mature garden enjoying the Southerly aspect. Mainly laid to lawn with planted borders, fruit trees and access to the side with garage. Huge potential to create you perfect garden, vegetable patch or even add a garden room/ cabin... plenty of space.
Viewing
Please contact us on 0151 343 9060 if you wish to arrange a viewing appointment for this property, or require further information.
Energy Performance Certificate
Click here to view the Energy Efficiency Rating and Environmental Impact Rating for this property.
Brennan Ayre O'Neill endeavour to maintain accurate depictions of properties in photos, virtual tours, floor plans and descriptions, however, these are intended only as a guide and purchasers / tenants and must therefore satisfy themselves by personal inspection prior to committing to any contract.

