- Super surprise install
- Amazingly deceptive true bungalow
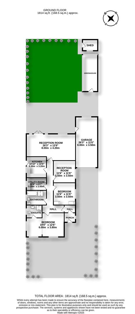
- With three bedrooms
- Large primary bedroom suite wih shower room
- Bath/shower room & sep utility
- Full width of bungalow living/dining room
- Separated integrated smart kitchen
- Long feauture hallway and new porch
- XL with remote garage door
- Beautiful garden with faux grass, private etc
Full Description
Before referring to our floor plan; one is forgiven in thinking this maybe at best an average sized two bedroomed detached bungalow. Well, far from it _ it has three double bedrooms; an extra large primary bedroom leading on to a fabulous en suite shower room; a super sized 'main' bathroom with shower and bath; a streamline and well appointed separate kitchen with appliances along with a smart utility room. As you can see a major sized main living and dining room combined which opens up onto what is a gorgeous well established yet simple and easy to manage rear garden.For many the added bonus of a separate utility room, extensive garage space; a substantial greenhouse and shed make this impressive property perhaps just far too good to be missed...And of course another big attraction is its location, tucked away just off the main Greasby Road for a quick dart by either car or public transport to all parts west or east - to West Kirby or Liverpool.
For your directions please Sat Nav: CH49 2NS...but be quick. This, in our view at least, is definitely a 'one off'; special.
Viewing
Please contact us on 0151 608 8586 if you wish to arrange a viewing appointment for this property, or require further information.
Energy Performance Certificate
Click here to view the Energy Efficiency Rating and Environmental Impact Rating for this property.
Brennan Ayre O'Neill endeavour to maintain accurate depictions of properties in photos, virtual tours, floor plans and descriptions, however, these are intended only as a guide and purchasers / tenants and must therefore satisfy themselves by personal inspection prior to committing to any contract.
For your directions please Sat Nav: CH49 2NS...but be quick. This, in our view at least, is definitely a 'one off'; special.
Viewing
Please contact us on 0151 608 8586 if you wish to arrange a viewing appointment for this property, or require further information.
Energy Performance Certificate
Click here to view the Energy Efficiency Rating and Environmental Impact Rating for this property.
Brennan Ayre O'Neill endeavour to maintain accurate depictions of properties in photos, virtual tours, floor plans and descriptions, however, these are intended only as a guide and purchasers / tenants and must therefore satisfy themselves by personal inspection prior to committing to any contract.

