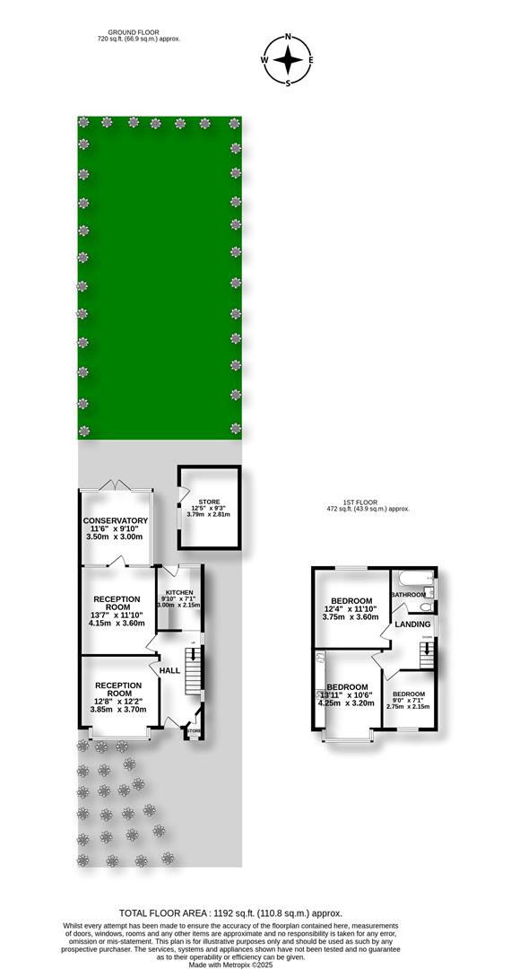
- A three bedroomed semi
- In need of upgrading
- With central heating and double glazing
- Two separate reception rooms
- Conservatory
- No onward chain
Full Description
This three bedroomed semi detached house is how we would describe as 'move-in-able' although it does in fairness require some upgrading. We believe our Guide Price reflects this.With a pleasant hall, two separate reception rooms, a conservatory and rear facing kitchen, there are also three bedrooms and combined bathroom to first floor.Out to the rear of the house and you'll notice a store room together with a particularly large rear garden. To the front there is off road parking for two.Set within this hugely popular established residential area close to the grammar schools, this semi is vacant and ready for your viewing...
For your directions please sat nav: CH63 2QE... a stroll from the shops at Teehey Lane and closer to Wirral Grammar for girls.
Viewing
Please contact us on 0151 608 8586 if you wish to arrange a viewing appointment for this property, or require further information.
Energy Performance Certificate
Click here to view the Energy Efficiency Rating and Environmental Impact Rating for this property.
Brennan Ayre O'Neill endeavour to maintain accurate depictions of properties in photos, virtual tours, floor plans and descriptions, however, these are intended only as a guide and purchasers / tenants and must therefore satisfy themselves by personal inspection prior to committing to any contract.
For your directions please sat nav: CH63 2QE... a stroll from the shops at Teehey Lane and closer to Wirral Grammar for girls.
Viewing
Please contact us on 0151 608 8586 if you wish to arrange a viewing appointment for this property, or require further information.
Energy Performance Certificate
Click here to view the Energy Efficiency Rating and Environmental Impact Rating for this property.
Brennan Ayre O'Neill endeavour to maintain accurate depictions of properties in photos, virtual tours, floor plans and descriptions, however, these are intended only as a guide and purchasers / tenants and must therefore satisfy themselves by personal inspection prior to committing to any contract.

