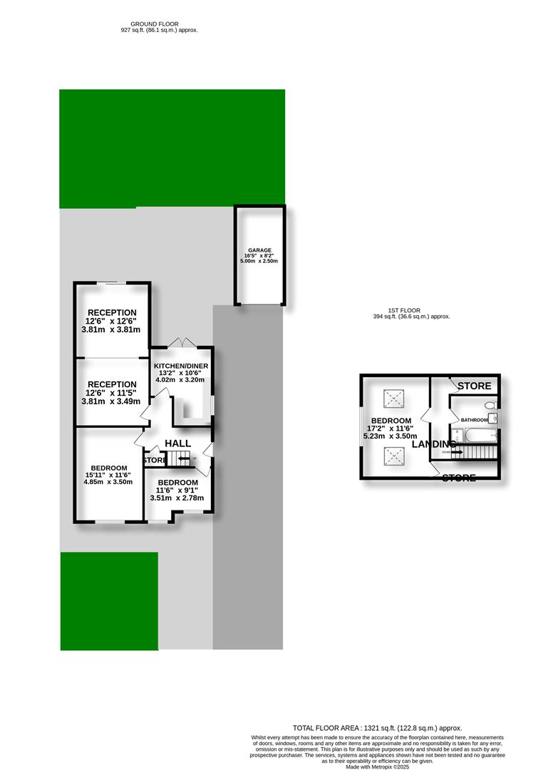
- A detached property with garage
- Large, private and sunny rear garden
- 3 Bedrooms, 2 at ground floor, 1 at first floor
- 4 Piece bathroom
- Space for cloakroom (ask to see CGI/drawings)
- XXL living/dining room
- Separate kitchen
Full Description
You can see how private this detached property is from the road, you can also see from our rear garden photos not only how big the garden plot is but also both how it enjoys all day sun and how private it is, not being overlooked from the rear at all...This detached property comprises three bedrooms; two to ground floor with one at first floor together with a four piece bathroom. For entertaining there's an XXL combined living/ dining room (see floor plan), whilst the separate kitchen also provides room enough for a square table and chairs....EPC to follow....
At first floor there's good storage and both o c windows and Velux roof windows. Of course the property also has gas central heating and there is a detached garage to the bottom of the drive.
Back outside and to the rear, in addition to an unfussy garden lawn, there's also an extensive patio area ...and of course, given the size of the plot, further opportunities to extend or perhaps add a log cabin/office with encroaching much at all into the garden space.
Finally please note that there is no onward chain to this property sale and as key holders, we can usually arrange a viewing at short notice.
Carnsdale Road is a nicely established road central to Moreton Village and to all the services this bustling village has to offer. It is also a quick dart to the main road leading to the motorway for the tunnel. For directions please sat Nav; CH46 9QR
Viewing
Please contact us on 0151 608 8586 if you wish to arrange a viewing appointment for this property, or require further information.
Energy Performance Certificate
Click here to view the Energy Efficiency Rating and Environmental Impact Rating for this property.
Brennan Ayre O'Neill endeavour to maintain accurate depictions of properties in photos, virtual tours, floor plans and descriptions, however, these are intended only as a guide and purchasers / tenants and must therefore satisfy themselves by personal inspection prior to committing to any contract.
At first floor there's good storage and both o c windows and Velux roof windows. Of course the property also has gas central heating and there is a detached garage to the bottom of the drive.
Back outside and to the rear, in addition to an unfussy garden lawn, there's also an extensive patio area ...and of course, given the size of the plot, further opportunities to extend or perhaps add a log cabin/office with encroaching much at all into the garden space.
Finally please note that there is no onward chain to this property sale and as key holders, we can usually arrange a viewing at short notice.
Carnsdale Road is a nicely established road central to Moreton Village and to all the services this bustling village has to offer. It is also a quick dart to the main road leading to the motorway for the tunnel. For directions please sat Nav; CH46 9QR
Viewing
Please contact us on 0151 608 8586 if you wish to arrange a viewing appointment for this property, or require further information.
Energy Performance Certificate
Click here to view the Energy Efficiency Rating and Environmental Impact Rating for this property.
Brennan Ayre O'Neill endeavour to maintain accurate depictions of properties in photos, virtual tours, floor plans and descriptions, however, these are intended only as a guide and purchasers / tenants and must therefore satisfy themselves by personal inspection prior to committing to any contract.

