Full Description
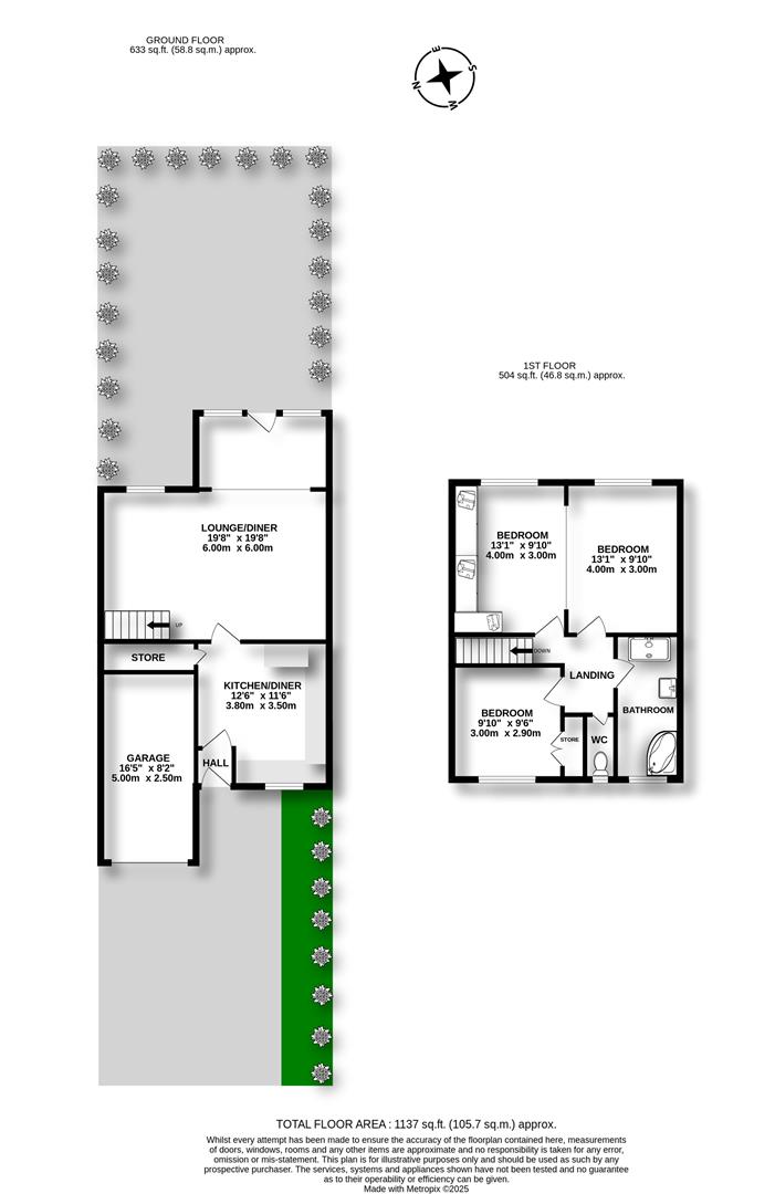
These town houses, located within Oxton, always prove hugely popular just as much for young families with BHSA school in mind, as for the retired. This particular town house has some identifiable features to take note of.Extended a little to the rear right-hand side of the property at ground floor, does in fact make a significant difference with furniture and space in mind.The kitchen, to us at least, is nicely square and certainly of a size to accommodate a breakfast table. (It also comes with a sizeable built in under-the-stairs pantry).The outlook from this spacious rear living and dining room, is one of a southerly facing orientation and comes with a private outlook on to a low maintenance rear garden.Up at first floor, where originally there were three double sized bedrooms off a good and square landing area; is now two rear bedrooms opened up to form one. (Both doors to the landing are still in situ). Both one of these bedrooms and the front bedroom have wardrobe furniture.The first floor bedroom accommodation is service by a particular attractive and again spacious bathroom with large shower cubicle, bath and basin and comes with a separate wc...
Outdoors and you can see the good off road parking to the front of the house with its blocked paved drive. The garden, as mentioned is an easy, straight forward 'keep': a very pleasant outdoor space.
A five minute drive at most to the village centre, or a ten minute walk to the bus stop or to the park; all services are nearby. For directions please Sat nav: CH43 1XW
Viewing
Please contact us on 0151 608 8586 if you wish to arrange a viewing appointment for this property, or require further information.
Energy Performance Certificate
Click here to view the Energy Efficiency Rating and Environmental Impact Rating for this property.
Brennan Ayre O'Neill endeavour to maintain accurate depictions of properties in photos, virtual tours, floor plans and descriptions, however, these are intended only as a guide and purchasers / tenants and must therefore satisfy themselves by personal inspection prior to committing to any contract.
Outdoors and you can see the good off road parking to the front of the house with its blocked paved drive. The garden, as mentioned is an easy, straight forward 'keep': a very pleasant outdoor space.
A five minute drive at most to the village centre, or a ten minute walk to the bus stop or to the park; all services are nearby. For directions please Sat nav: CH43 1XW
Viewing
Please contact us on 0151 608 8586 if you wish to arrange a viewing appointment for this property, or require further information.
Energy Performance Certificate
Click here to view the Energy Efficiency Rating and Environmental Impact Rating for this property.
Brennan Ayre O'Neill endeavour to maintain accurate depictions of properties in photos, virtual tours, floor plans and descriptions, however, these are intended only as a guide and purchasers / tenants and must therefore satisfy themselves by personal inspection prior to committing to any contract.

