- With plenty of parking for a van & cars
- A traditional semi with three bedrooms
- A private south facing garden
- Cloakroom facilites
- Generous separate utility room
- Large conservatory
- Walk to the village and school
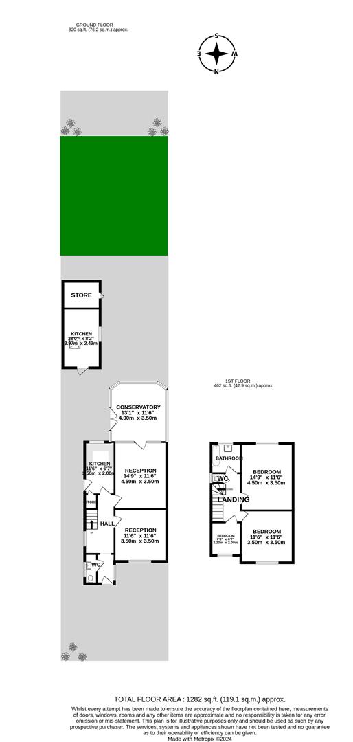
Full Description
With a blocked pave driveway for three cars, this handsome and traditional three bedroomed semi detached house also comes with a good sized south facing conservatory together with a former garage well converted into a fully working utility room (plumbing/worktops/units/sink) with skylight Velux and window - ideal for alternative uses too.Some other special features to look out for include a very appealing, long hallway with cloak room suite (see photos) and a particularly impressive spacious primary bedroom which looks onto the rear garden.In all, one very attractive hall, two fine reception rooms, one of which opens to a sizeable conservatory; separate rear facing kitchen and with three bedrooms and a bathroom with a separate loo to the first floor.Outdoors includes this excellent drive, an Indian sandstone patio to the side and rear of the house with the patio to the rear leading onto an established and considerably private rear garden...
The house is located on what is considered a quiet road within Oxton. Within a five to ten minute walk to both Oxton Village and schools including St Anselm's College, BHSA for girls and Birkenhead School and an extra few minutes to Birkenhead Park, Lorne Road is also considered a very well placed location in Oxton handy for all the usual amenities. Bus services are nearby too for town, for the station and for Liverpool. For your directions please sat nav: CH43 1XD
Viewing
Please contact us on 0151 608 8586 if you wish to arrange a viewing appointment for this property, or require further information.
Energy Performance Certificate
Click here to view the Energy Efficiency Rating and Environmental Impact Rating for this property.
Brennan Ayre O'Neill endeavour to maintain accurate depictions of properties in photos, virtual tours, floor plans and descriptions, however, these are intended only as a guide and purchasers / tenants and must therefore satisfy themselves by personal inspection prior to committing to any contract.
The house is located on what is considered a quiet road within Oxton. Within a five to ten minute walk to both Oxton Village and schools including St Anselm's College, BHSA for girls and Birkenhead School and an extra few minutes to Birkenhead Park, Lorne Road is also considered a very well placed location in Oxton handy for all the usual amenities. Bus services are nearby too for town, for the station and for Liverpool. For your directions please sat nav: CH43 1XD
Viewing
Please contact us on 0151 608 8586 if you wish to arrange a viewing appointment for this property, or require further information.
Energy Performance Certificate
Click here to view the Energy Efficiency Rating and Environmental Impact Rating for this property.
Brennan Ayre O'Neill endeavour to maintain accurate depictions of properties in photos, virtual tours, floor plans and descriptions, however, these are intended only as a guide and purchasers / tenants and must therefore satisfy themselves by personal inspection prior to committing to any contract.

