- Substantial, private garden plot
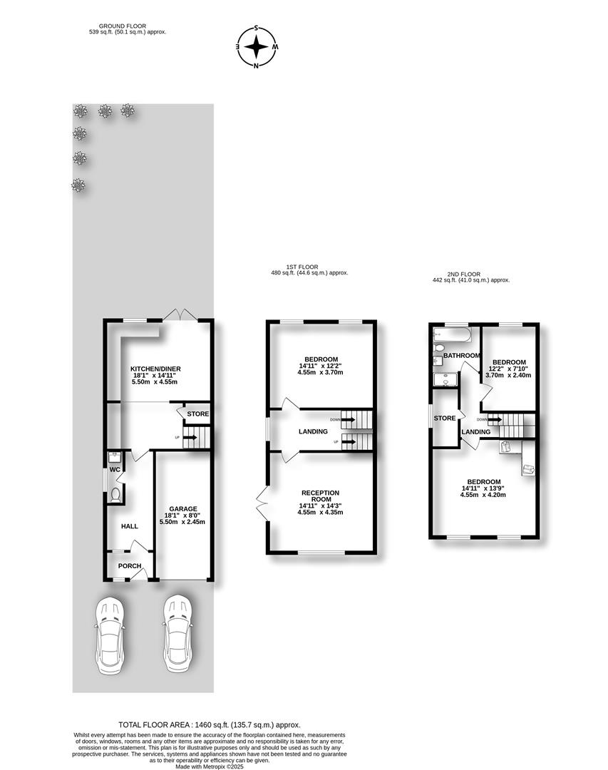
- A three storey property
- Reconfigured, with many much larger rooms than its neighbours
- Fabulous kitchen/diner
- A stunning first floor living room
- Two XL double bedroom, 3 in all
- Also Super sized bathroom with 4 ps
- Cloakroom
- OXTON VILLAGE LOCATION
- Situated at the top of Ringwood
Full Description
Occupying an extra large and private corner garden plot, this three storey end town house stands at the very top of Ringwood, just a minutes or two by car into the very centre of the village (A ten minute walk).Remodeled to maximise accommodation opportunities within this popular town houses, this particular property has some impressive accommodation the benefits of which are clearly set out within our floor plan below.First perhaps to the garden plot. A garden much larger than expected from any previous local town houses sold; and especially so of homes along Ringwood. Such a size we believed it sensible to give you an idea not just from images but from a location plan too. It is a private garden, a garden that offers something for everyone, young and, well not so, perhaps. Importantly it is very private too.Step in from the garden to a large combined family living area with kitchen and dining quarters - even room for a sofa.. The floor here is tiled for easy of maintenance and there are cloakroom facilities along the hallway returning to the front entrance....
Up at first floor and the main living room is a beautifully bright room, a room with an extra wide front facing window together with a pair of double opening patio doors to a Juliette balcony and a view onto the garden.
Across from the landing is one of two impressive sized double bedrooms - this one particularly so given it was first designed to be the kitchen/dining room within the original layout of these properties.
Up again to the top floor, brighter still, as you will notice, and to two further bedrooms - one other great double sized bedroom and a particularly good single bedroom (certainly not 'box room' in size). Here at there is also an extra large bathroom (being once a bedroom); offering four piece suite facilities. (The very useful storage you will see at this floor was the original bathroom - so it too is good space).
Please note a 15 year guarantee is transferable for the roof at this property.
Returning to the outdoors and to the front of the house and you can clearly see the two car parking facility and access to the garage. The front garden area is well protected by a neat, manicured hedge. The boundary around and along Talbot road comprises a sandstone wall on top of which is a timber fence. The fact the land to the garden is higher to than the road, makes for a particularly private garden area in total.
We've mentioned the proximity of the village. There's access to the motorway spur five minutes away too and plenty of recreation spaces to choose from, the nearest a couple minutes walk adjacent to St Saviour's Primary School; it's goes by the name of The Arno or Oxton Fields. For directions please Sat Nav: CH43 2LY
Tenure
This property is freehold however there is a £15 per annum ground rent payable to E & M.
Viewing
Please contact us on 0151 608 8586 if you wish to arrange a viewing appointment for this property, or require further information.
Energy Performance Certificate
Click here to view the Energy Efficiency Rating and Environmental Impact Rating for this property.
Brennan Ayre O'Neill endeavour to maintain accurate depictions of properties in photos, virtual tours, floor plans and descriptions, however, these are intended only as a guide and purchasers / tenants and must therefore satisfy themselves by personal inspection prior to committing to any contract.
Up at first floor and the main living room is a beautifully bright room, a room with an extra wide front facing window together with a pair of double opening patio doors to a Juliette balcony and a view onto the garden.
Across from the landing is one of two impressive sized double bedrooms - this one particularly so given it was first designed to be the kitchen/dining room within the original layout of these properties.
Up again to the top floor, brighter still, as you will notice, and to two further bedrooms - one other great double sized bedroom and a particularly good single bedroom (certainly not 'box room' in size). Here at there is also an extra large bathroom (being once a bedroom); offering four piece suite facilities. (The very useful storage you will see at this floor was the original bathroom - so it too is good space).
Please note a 15 year guarantee is transferable for the roof at this property.
Returning to the outdoors and to the front of the house and you can clearly see the two car parking facility and access to the garage. The front garden area is well protected by a neat, manicured hedge. The boundary around and along Talbot road comprises a sandstone wall on top of which is a timber fence. The fact the land to the garden is higher to than the road, makes for a particularly private garden area in total.
We've mentioned the proximity of the village. There's access to the motorway spur five minutes away too and plenty of recreation spaces to choose from, the nearest a couple minutes walk adjacent to St Saviour's Primary School; it's goes by the name of The Arno or Oxton Fields. For directions please Sat Nav: CH43 2LY
Tenure
This property is freehold however there is a £15 per annum ground rent payable to E & M.
Viewing
Please contact us on 0151 608 8586 if you wish to arrange a viewing appointment for this property, or require further information.
Energy Performance Certificate
Click here to view the Energy Efficiency Rating and Environmental Impact Rating for this property.
Brennan Ayre O'Neill endeavour to maintain accurate depictions of properties in photos, virtual tours, floor plans and descriptions, however, these are intended only as a guide and purchasers / tenants and must therefore satisfy themselves by personal inspection prior to committing to any contract.

