Full Description
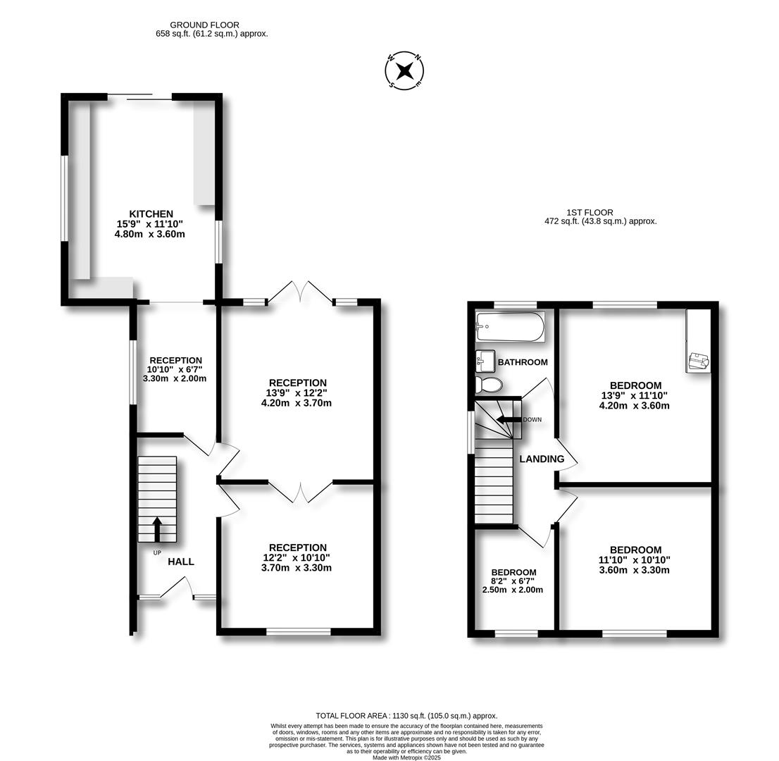
**NO CHAIN** An EXTENDED semi which offers huge potential to make your own. Well positioned for local amenities including schools, shops and transport links. Off road parking to the front, garden and access to the side. The accommodation offers a spacious hallway with a 2 reception rooms on the right with connecting doors. French doors open onto the garden to the rear. A central room (formally the kitchen) leads into the now extended kitchen which offers a well proportioned room with a wide range of wall and base units with space for white goods and duel aspect to the side and French doors opening to the rear. Making your way upstairs you will find 3 bedrooms in total with 2 double and one single. A spacious family bathroom with 3 piece suite incorporating bath with shower above, wash basin and WC. The gas central heating boiler can be found in the rear bedroom. Outside presents a raised patio area whilst the majority is laid to lawn with steps down, planted borders and mature aspect to the rear and fields beyond. Come and see it for yourself.
Viewing
Please contact us on 0151 343 9060 if you wish to arrange a viewing appointment for this property, or require further information.
Energy Performance Certificate
Click here to view the Energy Efficiency Rating and Environmental Impact Rating for this property.
Brennan Ayre O'Neill endeavour to maintain accurate depictions of properties in photos, virtual tours, floor plans and descriptions, however, these are intended only as a guide and purchasers / tenants and must therefore satisfy themselves by personal inspection prior to committing to any contract.
Viewing
Please contact us on 0151 343 9060 if you wish to arrange a viewing appointment for this property, or require further information.
Energy Performance Certificate
Click here to view the Energy Efficiency Rating and Environmental Impact Rating for this property.
Brennan Ayre O'Neill endeavour to maintain accurate depictions of properties in photos, virtual tours, floor plans and descriptions, however, these are intended only as a guide and purchasers / tenants and must therefore satisfy themselves by personal inspection prior to committing to any contract.

