Full Description
There something about Port Sunlight properties which just make you smile! This particular offers character and charm but offers a number of extras for example a good size garden, space to park to the rear and even comes with PLANNING PERMISSION to extend! The accommodations includes a well proportioned living room with log burner, kitchen diner, 2 spacious bedrooms and a white bathroom. This is one which you need to see to appreciate.
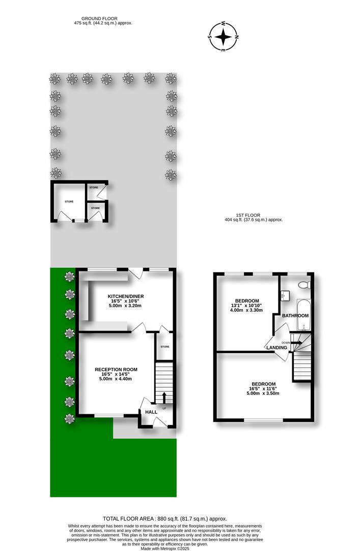
The current owners have planning approved for a single story conservatory extension to the rear (LBC/24/00797) to be constructed in timber on a 450mm brick plinth with hipped roof with clay tiles to match the existing roof.
As with all Port Sunlight properties this end terrace property has kerb appeal, set back from the road with a deep grass verge and path leading to the front entrance with canopy threshold and hardwood part glazed door opening into the hallway where you have the stairs to the first floor and connecting door into the living room.
A well proportioned living room with a cosy feel, aspect to the front allowing natural light to pour in, Parquet flooring underfoot and a log burner with brick hearth. Connecting door into the kitchen diner which spans the full width of the property enjoying the rear aspect over the garden.
The kitchen is fitted on the left hand side offering a range of base units which incorporate cupboards, drawers with display shelving and complimentary worktops with space for freestanding fridge /freezer, oven and plumbing for washing machine and integrated dishwasher, inset Belfast sink and open to the dining area with under stairs cupboard.
Making your way upstairs the turned staircase is filled with natural light with sky light and access to all rooms.
This property has the benefit of 2 spacious double bedrooms with the larger positioned at the front and comes with secondary glazing.
A white suite which includes a bath with shower over, wash basin and WC with part tiled walls.
A patio area to the immediate which benefits from the extra width to the side being an end terrace. This area has a real courtyard feel with brick boundary walls and outbuildings. The main garden is a wildlife garden with a meandering path flanked with a wide range of plants and flowers, 4 x fruit trees and 2 small ponds with space for greenhouse with gated access to the rear.
Viewing
Please contact us on 0151 343 9060 if you wish to arrange a viewing appointment for this property, or require further information.
Brennan Ayre O'Neill endeavour to maintain accurate depictions of properties in photos, virtual tours, floor plans and descriptions, however, these are intended only as a guide and purchasers / tenants and must therefore satisfy themselves by personal inspection prior to committing to any contract.
The current owners have planning approved for a single story conservatory extension to the rear (LBC/24/00797) to be constructed in timber on a 450mm brick plinth with hipped roof with clay tiles to match the existing roof.
As with all Port Sunlight properties this end terrace property has kerb appeal, set back from the road with a deep grass verge and path leading to the front entrance with canopy threshold and hardwood part glazed door opening into the hallway where you have the stairs to the first floor and connecting door into the living room.
A well proportioned living room with a cosy feel, aspect to the front allowing natural light to pour in, Parquet flooring underfoot and a log burner with brick hearth. Connecting door into the kitchen diner which spans the full width of the property enjoying the rear aspect over the garden.
The kitchen is fitted on the left hand side offering a range of base units which incorporate cupboards, drawers with display shelving and complimentary worktops with space for freestanding fridge /freezer, oven and plumbing for washing machine and integrated dishwasher, inset Belfast sink and open to the dining area with under stairs cupboard.
Making your way upstairs the turned staircase is filled with natural light with sky light and access to all rooms.
This property has the benefit of 2 spacious double bedrooms with the larger positioned at the front and comes with secondary glazing.
A white suite which includes a bath with shower over, wash basin and WC with part tiled walls.
A patio area to the immediate which benefits from the extra width to the side being an end terrace. This area has a real courtyard feel with brick boundary walls and outbuildings. The main garden is a wildlife garden with a meandering path flanked with a wide range of plants and flowers, 4 x fruit trees and 2 small ponds with space for greenhouse with gated access to the rear.
Viewing
Please contact us on 0151 343 9060 if you wish to arrange a viewing appointment for this property, or require further information.
Brennan Ayre O'Neill endeavour to maintain accurate depictions of properties in photos, virtual tours, floor plans and descriptions, however, these are intended only as a guide and purchasers / tenants and must therefore satisfy themselves by personal inspection prior to committing to any contract.

