- A No Chain Sale
- With 3 Bedrooms
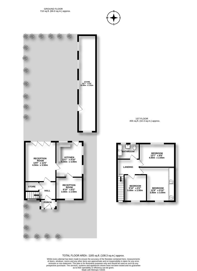
- 2 Reception Rooms
- Good Off Road Parking
- Large South Facing Garden
- XL Shed/Store
Full Description
There's good off road parking onto a pressed concrete drive to this attractive three bedroomed semi detached house. There's also a very sunny south facing rear garden, together with an ornamental fish pond and XXL timber store/shed - see floor plan (to follow) With two separate reception rooms, together with a nicely sized kitchen, this is a well proportioned family semi with matching sized garden.Of course we appreciate there are some improvements you will want to make and we have reflected this in our Guide Price.
Standing within the ever popular Mount Estate just a few doors away from a small wooded copse for a short walk with the dog; with buses to catch along Mount Road, a three minute walk away. This is a very convenient spot. For directions sat nav: CH42 6SQ
Viewing
Please contact us on 0151 608 8586 if you wish to arrange a viewing appointment for this property, or require further information.
Energy Performance Certificate
Click here to view the Energy Efficiency Rating and Environmental Impact Rating for this property.
Brennan Ayre O'Neill endeavour to maintain accurate depictions of properties in photos, virtual tours, floor plans and descriptions, however, these are intended only as a guide and purchasers / tenants and must therefore satisfy themselves by personal inspection prior to committing to any contract.
Standing within the ever popular Mount Estate just a few doors away from a small wooded copse for a short walk with the dog; with buses to catch along Mount Road, a three minute walk away. This is a very convenient spot. For directions sat nav: CH42 6SQ
Viewing
Please contact us on 0151 608 8586 if you wish to arrange a viewing appointment for this property, or require further information.
Energy Performance Certificate
Click here to view the Energy Efficiency Rating and Environmental Impact Rating for this property.
Brennan Ayre O'Neill endeavour to maintain accurate depictions of properties in photos, virtual tours, floor plans and descriptions, however, these are intended only as a guide and purchasers / tenants and must therefore satisfy themselves by personal inspection prior to committing to any contract.

