- NO CHAIN SALE
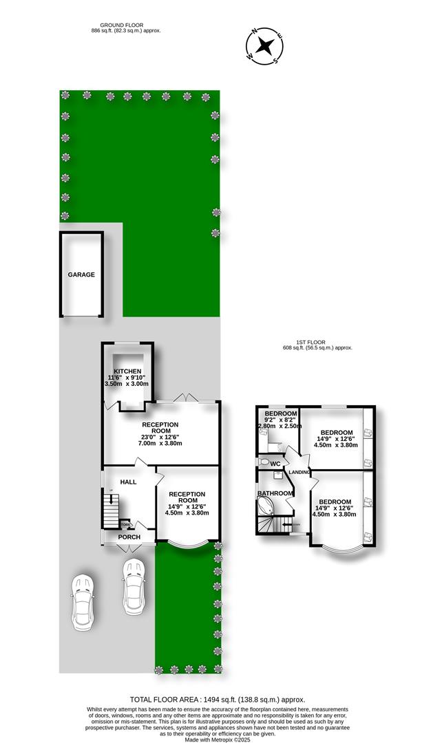
- Handsome three bed semi with garage
- Two reception rooms - one XL large
- Great views to Liverpool
- Good sized garden and Decked patio
Full Description
This is a hugely attractive traditional semi with a variety features to look out for during your first visit. In no particular order we would point out the fabulous view across to Liverpool; the long block paved drive to the garage for a couple of cars; the particularly spacious square hall (with Christmas and especially the Xmas tree in mind); a significantly spacious and very appealing rear reception room together with a kitchen with garden view and skylights.Up at first floor are three noticeably bright bedrooms (see both garden and skyline view photos) service by a bathroom with separate loo. The stairs and landing to first floor is an attractive area too.The location of this fine house , sensibly price in our view, appreciating some updating to be done, is central. Central that is to schools, including a short walk to St Anselm's College; to Birkenhead Park and to the tunnel for a quick dart to the city for work or pleasure.In conclusion, a fab opportunity, a fab family house, a great spot AND note please that there is no onward chain and so no unnecessary delays for this purchase...We are key holders so please call us to view.
For your directions please Sat Nav: CH43 1UJ
Viewing
Please contact us on 0151 608 8586 if you wish to arrange a viewing appointment for this property, or require further information.
Energy Performance Certificate
Click here to view the Energy Efficiency Rating and Environmental Impact Rating for this property.
Brennan Ayre O'Neill endeavour to maintain accurate depictions of properties in photos, virtual tours, floor plans and descriptions, however, these are intended only as a guide and purchasers / tenants and must therefore satisfy themselves by personal inspection prior to committing to any contract.
For your directions please Sat Nav: CH43 1UJ
Viewing
Please contact us on 0151 608 8586 if you wish to arrange a viewing appointment for this property, or require further information.
Energy Performance Certificate
Click here to view the Energy Efficiency Rating and Environmental Impact Rating for this property.
Brennan Ayre O'Neill endeavour to maintain accurate depictions of properties in photos, virtual tours, floor plans and descriptions, however, these are intended only as a guide and purchasers / tenants and must therefore satisfy themselves by personal inspection prior to committing to any contract.

