- A fabulous 'Project' - extensive refurbishment required
- Within a very popular Residential road and location
- 'Sunny' side of the road
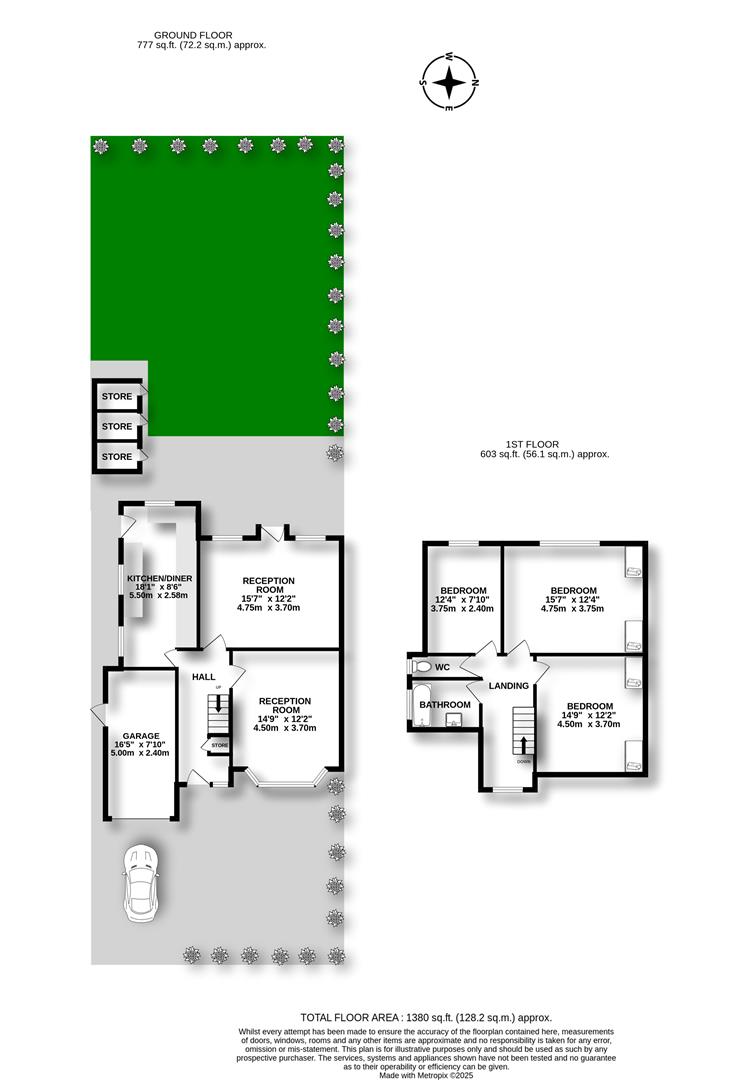
- Two good reception rooms - one especially large rear living room
- A separate kitchen
- Three really good sized bedrooms - one especially large
- Good sized bathroom and sep loo
- Garage & outhouses
- Good off road parking
Full Description
Bring your ideas, your interior designs and your budget and turn this fab XL large three bed semi back into something/somewhere/someplace special.A handsome south west facing garden plot, with good front of house parking and garage; this traditional semi is a fantastic 'PROJECT' and does requires an extensive refurbishment with plenty of space to the rear to go further and make this your potential new home even bigger.Obviously no chain means no delays. So make that viewing appointment as soon as you like..
Note the shade on the front of house picture on a clear winter's day tells you the sun is on the rear of the house.
Nice and handy for public transport, schools, shops, the usual. Walker Park for the stretch of the legs is just a few minutes away on foot too....Sat N\v: CH43 0RF
Viewing
Please contact us on 0151 608 8586 if you wish to arrange a viewing appointment for this property, or require further information.
Energy Performance Certificate
Click here to view the Energy Efficiency Rating and Environmental Impact Rating for this property.
Brennan Ayre O'Neill endeavour to maintain accurate depictions of properties in photos, virtual tours, floor plans and descriptions, however, these are intended only as a guide and purchasers / tenants and must therefore satisfy themselves by personal inspection prior to committing to any contract.
Note the shade on the front of house picture on a clear winter's day tells you the sun is on the rear of the house.
Nice and handy for public transport, schools, shops, the usual. Walker Park for the stretch of the legs is just a few minutes away on foot too....Sat N\v: CH43 0RF
Viewing
Please contact us on 0151 608 8586 if you wish to arrange a viewing appointment for this property, or require further information.
Energy Performance Certificate
Click here to view the Energy Efficiency Rating and Environmental Impact Rating for this property.
Brennan Ayre O'Neill endeavour to maintain accurate depictions of properties in photos, virtual tours, floor plans and descriptions, however, these are intended only as a guide and purchasers / tenants and must therefore satisfy themselves by personal inspection prior to committing to any contract.

