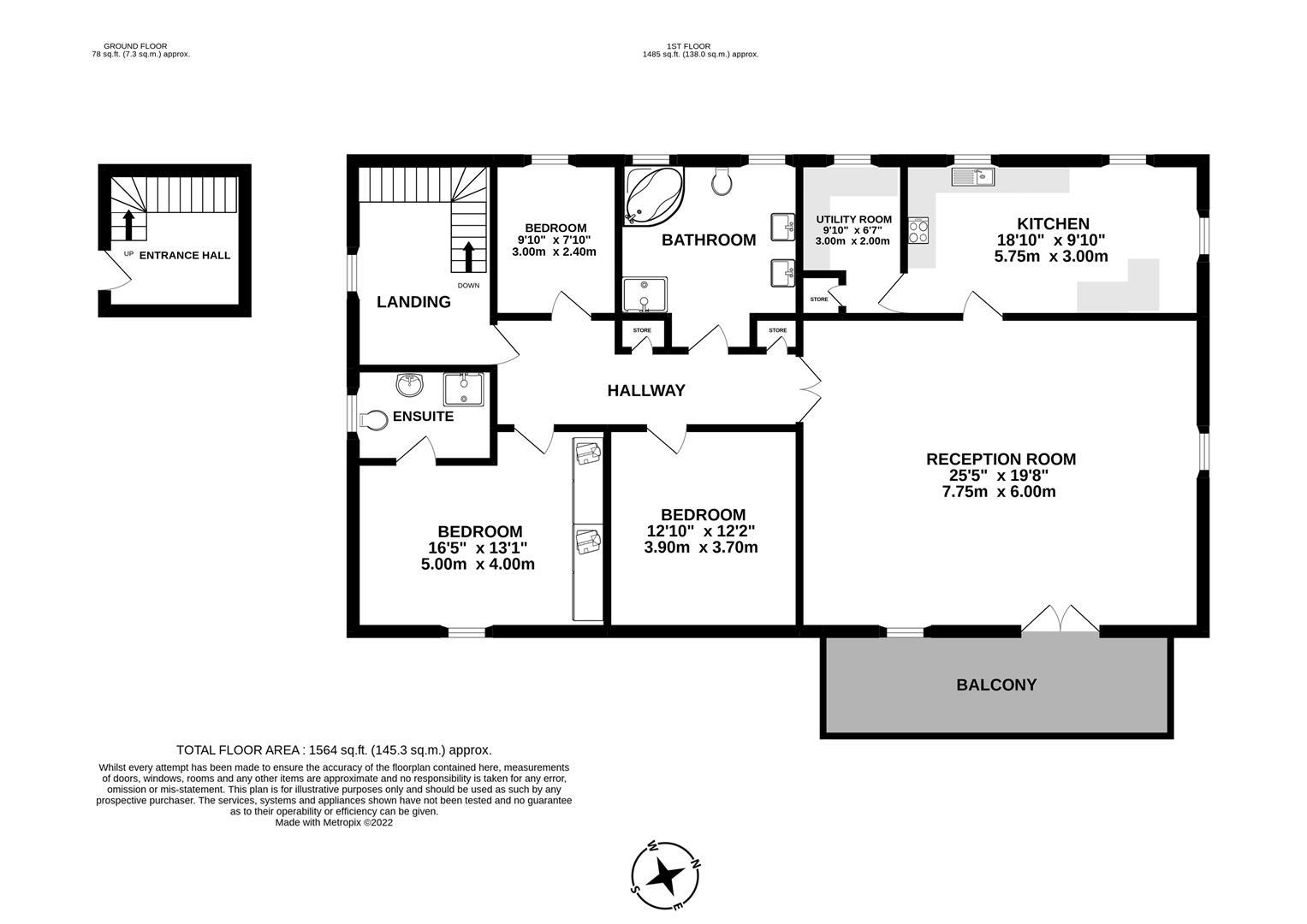
- A three bedroomed mansion apartment
- With own front entrance to the first floor
- With balcony from living room
- Hugely generous sized living room
- Separate kitchen
- Large bathroom and en suite shower
- Prestigious location
Full Description
There's a sublimely cool retro' element to this, one of the chicest of mansion apartments north of the river Thames. Suited as much for the 007 inspired as for those simply appreciating a style and sophistication all neatly and meticulously wrapped up within a hugely generous abundance of space: welcome then to The Westwoods.This development sits opposite both Wirral Golf Course and playing fields belonging to Birkenhead School. Property prices along Noctorum Road sit within the very highest upper quartile of price ranges east of the Wirral Peninsula. There are just two pair of apartments set within generously well kept and established grounds, all with their own garaging, set to the rear of the development.Refurbished just within the last 24 months; this apartment has been no less than re-energised; revived, remodelled: the outcome of which, not least for its retro' slant, would, if Grand Designs covered apartments, sit comfortably within Kevin's latest series.Check out the floor plan, our slide show of photos , the location and give us a call. We can usually escort you around to take part in the exciting viewing experience at short notice - we just ask that you are in a position to buy when you make that call....
Tenure
This apartment is on a long lease of @950 years. Each of the four residents own one quarter of the freehold. Current service charges are £1,800 per annum as administered by The Westwoods Management Co; run by the aforementioned residents. You may be interested to know that the space between ground and first floor with the stairwell and entrance lobby and hall is likely large enough for the installation of a private lift. In addition please note an opening has been made between master bedroom suite and bedroom three for potential walk in dressing room purposes - easily rectifiable.
For your directions head to the south west side of the golf Course, along Noctorum Road and opposite the corner of the playing field you'll see our for sale sign. For your directions please Sat Nav: CH43 9UQ
Viewing
Please contact us on 0151 608 8586 if you wish to arrange a viewing appointment for this property, or require further information.
Brennan Ayre O'Neill endeavour to maintain accurate depictions of properties in photos, virtual tours, floor plans and descriptions, however, these are intended only as a guide and purchasers / tenants and must therefore satisfy themselves by personal inspection prior to committing to any contract.
Tenure
This apartment is on a long lease of @950 years. Each of the four residents own one quarter of the freehold. Current service charges are £1,800 per annum as administered by The Westwoods Management Co; run by the aforementioned residents. You may be interested to know that the space between ground and first floor with the stairwell and entrance lobby and hall is likely large enough for the installation of a private lift. In addition please note an opening has been made between master bedroom suite and bedroom three for potential walk in dressing room purposes - easily rectifiable.
For your directions head to the south west side of the golf Course, along Noctorum Road and opposite the corner of the playing field you'll see our for sale sign. For your directions please Sat Nav: CH43 9UQ
Viewing
Please contact us on 0151 608 8586 if you wish to arrange a viewing appointment for this property, or require further information.
Brennan Ayre O'Neill endeavour to maintain accurate depictions of properties in photos, virtual tours, floor plans and descriptions, however, these are intended only as a guide and purchasers / tenants and must therefore satisfy themselves by personal inspection prior to committing to any contract.

