- Large four bedroomed semi
- Nice and close to the Village
- Opposite Christ Church
- Two minute walk to the centre
- No on property chain
Full Description
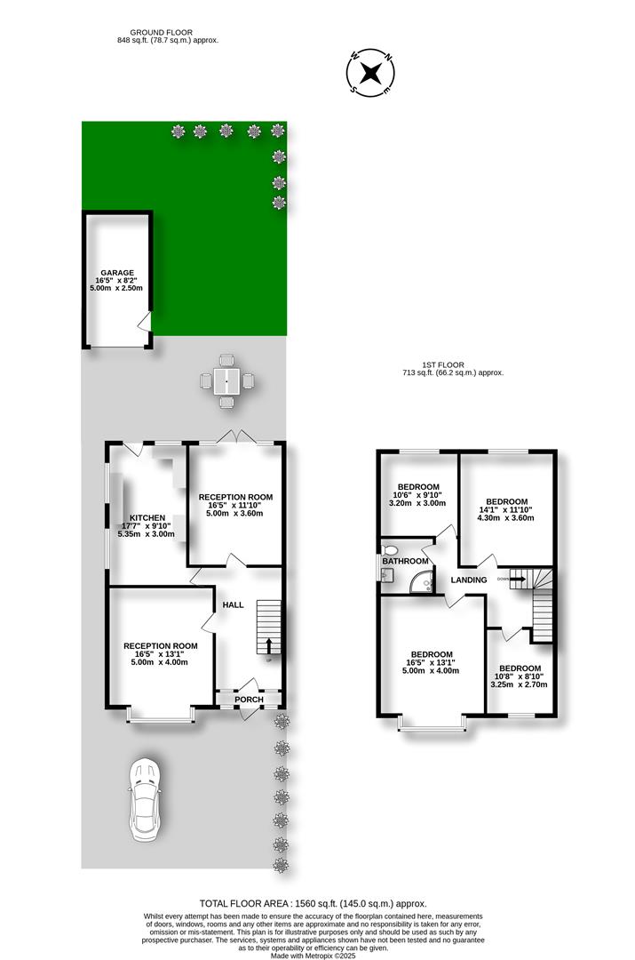
This is a handsome large four bedroomed traditional semi detached house standing opposite Christ Church along Christchurch Road. A two minute walk into the village, this house is close to the centre without the disruption one might experience from living directly in the centre of what is a very popular and busy village community.Good sized rooms, both at ground and first floor together with sensibly proportioned hall and landing areas. Note the significant size of the 'family' kitchen and of the two reception rooms. The bedrooms too have extra large 'double' size rooms, leaving two smaller rooms, neither of which can be classed as a traditional 'box room'.Outdoors and you can see there is a proportionate garden size with patio and to the front, off road parking. A 'no chain sale' means minimum fuss, no onward delays and what should be a simple, straight forward purchase for you...We recognise the house requires some upgrading which we believe has been taken into account with our Guide Price.Come and enjoy Oxton village, its vibrant community, and appreciate to the proximity to all other amenities close at hand.
For your directions please Sat Nav: CH43 5SF. This property is vacant and as key holders we can usually arrange a viewing for you at relatively short notice.
Viewing
Please contact us on 0151 608 8586 if you wish to arrange a viewing appointment for this property, or require further information.
Energy Performance Certificate
Click here to view the Energy Efficiency Rating and Environmental Impact Rating for this property.
Brennan Ayre O'Neill endeavour to maintain accurate depictions of properties in photos, virtual tours, floor plans and descriptions, however, these are intended only as a guide and purchasers / tenants and must therefore satisfy themselves by personal inspection prior to committing to any contract.
For your directions please Sat Nav: CH43 5SF. This property is vacant and as key holders we can usually arrange a viewing for you at relatively short notice.
Viewing
Please contact us on 0151 608 8586 if you wish to arrange a viewing appointment for this property, or require further information.
Energy Performance Certificate
Click here to view the Energy Efficiency Rating and Environmental Impact Rating for this property.
Brennan Ayre O'Neill endeavour to maintain accurate depictions of properties in photos, virtual tours, floor plans and descriptions, however, these are intended only as a guide and purchasers / tenants and must therefore satisfy themselves by personal inspection prior to committing to any contract.

