- A NO CHAIN SALE
- We class this SHOW HOME as 3 Bedrooms
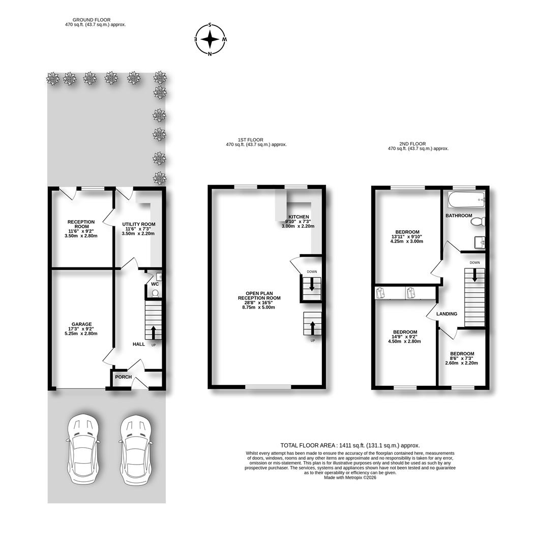
- Potential fourth adjacent the sizeable utility
- Cloakroom
- Garage
- Fabulous living accommodation
- Three storey
- Close to the village
Full Description
Ostensibly there are three bedrooms to this OXTON SHOW HOME - although a spare 'room' adjacent to the utility room does offer the capacity to class this town house as a FOUR bedroomed home.Refurbished in very recent times this very comfortable and especially bright home sits along Ringwood in, as it happens, one of the best spots along the road. It's the aspect to both the front and rear of the house that make it so, together with its south facing rear garden orientation...Packs of space then here with clearly the main attraction but by no means the only one is the open plan kitchen and living room. Check out the floor plan for the amount of floor space; get the idea of the finish of this exceptional kitchen and bathroom from our photo slideshow and appreciate also please the overall presentation and lifestyle decor to what is a hugely comfortable home...Then, if you will, take stock of the proximity of Ringwood to the village. Maybe a ten minute walk; or to the bus stop along Talbot/Bidston Road, just three or four. For those of you not aware, Ringwood is a non through road, so nice a peaceful and traffice-less.
For your directions please Sat Nav: CH43 2LZ - and once you've been smitten, take comfort in the fact there'll be no onward delays with there being no onward property purchase to navigate...
Viewing
Please contact us on 0151 608 8586 if you wish to arrange a viewing appointment for this property, or require further information.
Energy Performance Certificate
Click here to view the Energy Efficiency Rating and Environmental Impact Rating for this property.
Brennan Ayre O'Neill endeavour to maintain accurate depictions of properties in photos, virtual tours, floor plans and descriptions, however, these are intended only as a guide and purchasers / tenants and must therefore satisfy themselves by personal inspection prior to committing to any contract.
For your directions please Sat Nav: CH43 2LZ - and once you've been smitten, take comfort in the fact there'll be no onward delays with there being no onward property purchase to navigate...
Viewing
Please contact us on 0151 608 8586 if you wish to arrange a viewing appointment for this property, or require further information.
Energy Performance Certificate
Click here to view the Energy Efficiency Rating and Environmental Impact Rating for this property.
Brennan Ayre O'Neill endeavour to maintain accurate depictions of properties in photos, virtual tours, floor plans and descriptions, however, these are intended only as a guide and purchasers / tenants and must therefore satisfy themselves by personal inspection prior to committing to any contract.

