- Two bedroomed semi
- XXL and heated conservatory
- Porch
- Living room
- Integrated kitchen
- First floor bathroom
- Parking for two
- NO CHAIN SALE
- Cul de sac position
Full Description
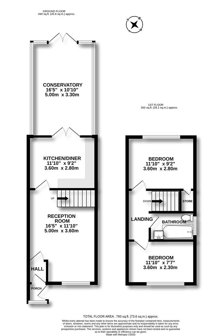
The second reception room to this two bedroomed semi detached house comprises an XXL and heated conservatory. A conservatory which has a high wall to one side and offers a considerable amount of privacy. Space basically you could use for all sorts - With off road parking for two cars, a south facing rear garden with proportionate accommodation, we believe this home may well interest those down sizing as much as for a first time buyer.On a practical level there is a storm porch as a well as a small vestibule - keeps the wind and the rain away from the main living room situated to the front of the house. Note the couple of useful sheds out to the side of the house which will be included in the sale.To the rear is an integrated kitchen with access to this super large, private conservatory with radiator. Meanwhile up at first floor are two good bedrooms and a generous sized full bathroom.The property is double glazed and gas centrally heated. Also please note that there is no onward property chain to this sale.
Situated within a relatively small estate and within a cul de sac position; this is a convenient yet quiet spot, for all amenities. For directions please sat Nav: CH43 3EY
Viewing
Please contact us on 0151 608 8586 if you wish to arrange a viewing appointment for this property, or require further information.
Energy Performance Certificate
Click here to view the Energy Efficiency Rating and Environmental Impact Rating for this property.
Brennan Ayre O'Neill endeavour to maintain accurate depictions of properties in photos, virtual tours, floor plans and descriptions, however, these are intended only as a guide and purchasers / tenants and must therefore satisfy themselves by personal inspection prior to committing to any contract.
Situated within a relatively small estate and within a cul de sac position; this is a convenient yet quiet spot, for all amenities. For directions please sat Nav: CH43 3EY
Viewing
Please contact us on 0151 608 8586 if you wish to arrange a viewing appointment for this property, or require further information.
Energy Performance Certificate
Click here to view the Energy Efficiency Rating and Environmental Impact Rating for this property.
Brennan Ayre O'Neill endeavour to maintain accurate depictions of properties in photos, virtual tours, floor plans and descriptions, however, these are intended only as a guide and purchasers / tenants and must therefore satisfy themselves by personal inspection prior to committing to any contract.

