- A distinguished Victorian semi
- With six bedrooms
- Three reception rooms
- An exciting project to refurbish throughout
- A ' no chain' property sale.
Full Description
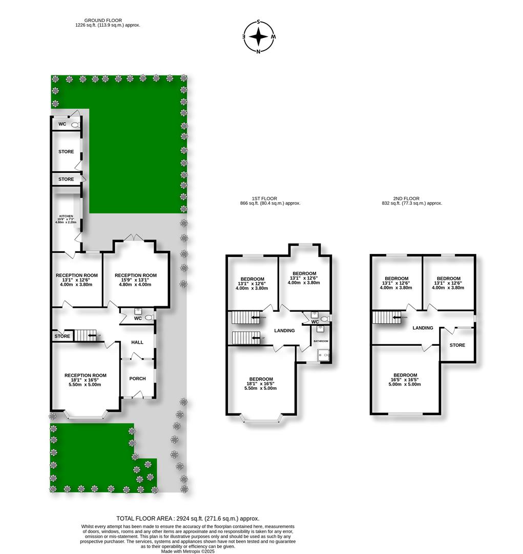
This is a hugely attractive Victorian semi detached property offered for sale as a 'blank canvas' as it were; with an opportunity to retain much of the detailed coving, cornice and woodwork with your refurbishment of what is a considerably substantial home. The accommodation offers three reception rooms, six bedrooms, with three per floor and with a bathroom to first floor and what would have been classed as the 'tank room' to the second ideally proportioned for that second bathroom.There is a particularly interesting and detailed entrance lobby and hallway with a cloakroom suite off; outhouses also ripe for conversion together with a south facing, established rear garden.
With regards to the location of this property, it stands minutes away only from St Anselm's College, a five minute walk to Birkenhead park (with Park Station located to the far side for trains to Liverpool). For drivers, the tunnel access is also just about a five minute drive away. For your directions please Sat Nav: CH43 1TB
Viewing
Please contact us on 0151 608 8586 if you wish to arrange a viewing appointment for this property, or require further information.
Energy Performance Certificate
Click here to view the Energy Efficiency Rating and Environmental Impact Rating for this property.
Brennan Ayre O'Neill endeavour to maintain accurate depictions of properties in photos, virtual tours, floor plans and descriptions, however, these are intended only as a guide and purchasers / tenants and must therefore satisfy themselves by personal inspection prior to committing to any contract.
With regards to the location of this property, it stands minutes away only from St Anselm's College, a five minute walk to Birkenhead park (with Park Station located to the far side for trains to Liverpool). For drivers, the tunnel access is also just about a five minute drive away. For your directions please Sat Nav: CH43 1TB
Viewing
Please contact us on 0151 608 8586 if you wish to arrange a viewing appointment for this property, or require further information.
Energy Performance Certificate
Click here to view the Energy Efficiency Rating and Environmental Impact Rating for this property.
Brennan Ayre O'Neill endeavour to maintain accurate depictions of properties in photos, virtual tours, floor plans and descriptions, however, these are intended only as a guide and purchasers / tenants and must therefore satisfy themselves by personal inspection prior to committing to any contract.

