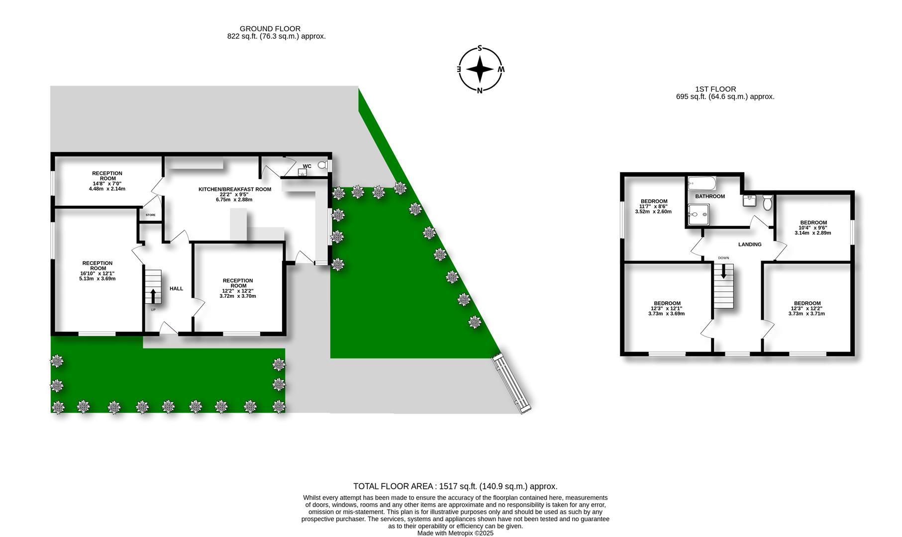
- Larger than it looks detached cottage
- With three reception rooms
- And four 'double' bedrooms
- AS well as kitcehn/breakfast room
- Cloakroom
- Large gardens
- Off road parking
- Gas CH & Double glazing
- A NO CHAIN SALE
Full Description
This handsome Victorian detached cottage is we would suggest larger within than either the property may suggest from the outside and for the adjective 'cottage' may suggest. For this we would refer you straight to our floor plan to appreciate both the numbers of and sizes of rooms within.For there are three reception rooms in addition to a kitchen breakfast room. There are also cloakroom facilities. Up at first floor are four double sized bedrooms service by a rather splendid bathroom suite with double shower tray, bath and separate loo.In addition you'll also appreciate from our selection of outdoor photographs the rather generous size of garden plot, generally south facing, that this property also enjoys. Off road parking is accessed from Hughes Lane, to the rear of the house...
With lots of character, nicely proportioned rooms, pleasant south facing views and with the Maitland Church as a neighbour, this now vacant to view property has much to offer.
Located within Oxton the village centre is but a ten minute stroll into whilst the Arno Fields with its rose gardens stands opposite. A very central location with all facilities at hand; please Sat Nav: CH43 5TL
Viewing
Please contact us on 0151 608 8586 if you wish to arrange a viewing appointment for this property, or require further information.
Energy Performance Certificate
Click here to view the Energy Efficiency Rating and Environmental Impact Rating for this property.
Brennan Ayre O'Neill endeavour to maintain accurate depictions of properties in photos, virtual tours, floor plans and descriptions, however, these are intended only as a guide and purchasers / tenants and must therefore satisfy themselves by personal inspection prior to committing to any contract.
With lots of character, nicely proportioned rooms, pleasant south facing views and with the Maitland Church as a neighbour, this now vacant to view property has much to offer.
Located within Oxton the village centre is but a ten minute stroll into whilst the Arno Fields with its rose gardens stands opposite. A very central location with all facilities at hand; please Sat Nav: CH43 5TL
Viewing
Please contact us on 0151 608 8586 if you wish to arrange a viewing appointment for this property, or require further information.
Energy Performance Certificate
Click here to view the Energy Efficiency Rating and Environmental Impact Rating for this property.
Brennan Ayre O'Neill endeavour to maintain accurate depictions of properties in photos, virtual tours, floor plans and descriptions, however, these are intended only as a guide and purchasers / tenants and must therefore satisfy themselves by personal inspection prior to committing to any contract.

