- Larger semi within hugely popular location
- With south facing rear garden
- Super smart integrated kitchen and shower room
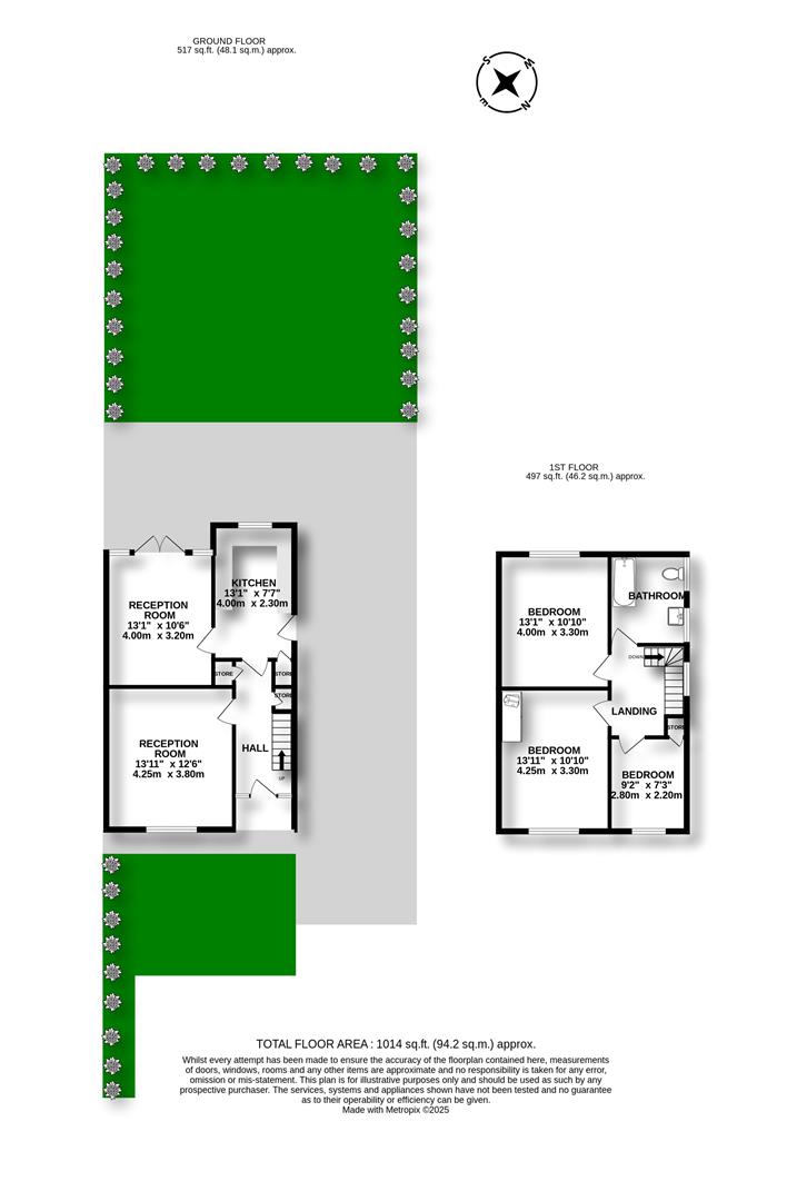
- Wide hall
- Two separate reception rooms
- And separate large kitchen
- Three bedrooms
- Shower room is XL
- No Onward Property Chain
- GAs CH & Double glazing
Full Description
This three bedroomed semi represents the larger house type on this estate, the location of the house, one of the very best locations..Were you to compare the average semi on The Holmlands Estate you'll appreciate how much bigger this property is to the average. Furthermore you may also appreciate the position of the house standing in a cul de sac location within a quarter of the estate which is also arguably the more popular.We would refer you to our floor plan straight away to see the sizes of the separate reception rooms, the depth of what is a very smart granite topped and integrated fitted kitchen and to note sizes of both the bedrooms and what is now a very appealing combined shower room (from what was a separate loo and bathroom).Many windows are of a hard wood sub double glazed variety whilst there are recently added pvc patio doors from the dining room to garden and a window and external door from kitchen to the side garden area.
There is no onward property purchase or chain to this house sale and as key holders we can usually arrange a viewing with you at relatively short notice. For directions to this property ( a few minutes from both the motorway spur and shops) please sat nav: CH43 0XG
Viewing
Please contact us on 0151 608 8586 if you wish to arrange a viewing appointment for this property, or require further information.
Energy Performance Certificate
Click here to view the Energy Efficiency Rating and Environmental Impact Rating for this property.
Brennan Ayre O'Neill endeavour to maintain accurate depictions of properties in photos, virtual tours, floor plans and descriptions, however, these are intended only as a guide and purchasers / tenants and must therefore satisfy themselves by personal inspection prior to committing to any contract.
There is no onward property purchase or chain to this house sale and as key holders we can usually arrange a viewing with you at relatively short notice. For directions to this property ( a few minutes from both the motorway spur and shops) please sat nav: CH43 0XG
Viewing
Please contact us on 0151 608 8586 if you wish to arrange a viewing appointment for this property, or require further information.
Energy Performance Certificate
Click here to view the Energy Efficiency Rating and Environmental Impact Rating for this property.
Brennan Ayre O'Neill endeavour to maintain accurate depictions of properties in photos, virtual tours, floor plans and descriptions, however, these are intended only as a guide and purchasers / tenants and must therefore satisfy themselves by personal inspection prior to committing to any contract.

