- A beautiful apartment
Full Description
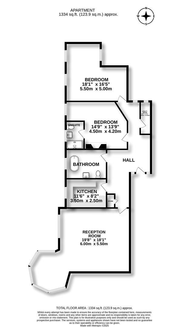
An exception home within an extraordinary handsome Victorian property. Six flats only, with each owning a share of the freehold, is the sum total of what lies within this hugely charming and characterful building known as Intabene.Offered with a beautiful interior to what is a super spacious and exquisitely presented first floor apartment; the property offers a number of rather charming features too. Most obviously is the feature bay window to the living/dining room, as photographed. There are also a number of other feature windows that maximise sunlight at this first floor level.The finish to detail of this elegant apartment is for all to see. A beautiful tactile, seamless kitchen; a hugely sophisticated and luxury bathroom; an elegantly proportioned entrance hall and with two over generous sized double bedrooms, one with en suite shower room together create a very obvious sense of extravagance...Meanwhile outdoors offers neatly presented and well cared for by all communal gardens; good off road parking together with a shared carport and total privacy from the road given the long drive up to the threshold.Please also note that whilst this exceptional apartment is located at first floor, access to it is via a very easy, gentle to ascend rising staircase; a staircase surrounded by polished Victorian wood paneling and stained glass windows - as we said, characterful.
Please note: there is no onward chain to this property sale. That the property enjoys along lease, a share of the freehold and that there are in total only six flats, three others of which share the communal entrance only.
Handy for the station, the motorway, Bidston Hill with its 100 acres f woodland trust and for the 437 Bus which is a regular service direct to Liverpool. for directions please sat nav: CH43 7QQ
Viewing
Please contact us on 0151 608 8586 if you wish to arrange a viewing appointment for this property, or require further information.
Energy Performance Certificate
Click here to view the Energy Efficiency Rating and Environmental Impact Rating for this property.
Brennan Ayre O'Neill endeavour to maintain accurate depictions of properties in photos, virtual tours, floor plans and descriptions, however, these are intended only as a guide and purchasers / tenants and must therefore satisfy themselves by personal inspection prior to committing to any contract.
Please note: there is no onward chain to this property sale. That the property enjoys along lease, a share of the freehold and that there are in total only six flats, three others of which share the communal entrance only.
Handy for the station, the motorway, Bidston Hill with its 100 acres f woodland trust and for the 437 Bus which is a regular service direct to Liverpool. for directions please sat nav: CH43 7QQ
Viewing
Please contact us on 0151 608 8586 if you wish to arrange a viewing appointment for this property, or require further information.
Energy Performance Certificate
Click here to view the Energy Efficiency Rating and Environmental Impact Rating for this property.
Brennan Ayre O'Neill endeavour to maintain accurate depictions of properties in photos, virtual tours, floor plans and descriptions, however, these are intended only as a guide and purchasers / tenants and must therefore satisfy themselves by personal inspection prior to committing to any contract.

