Full Description
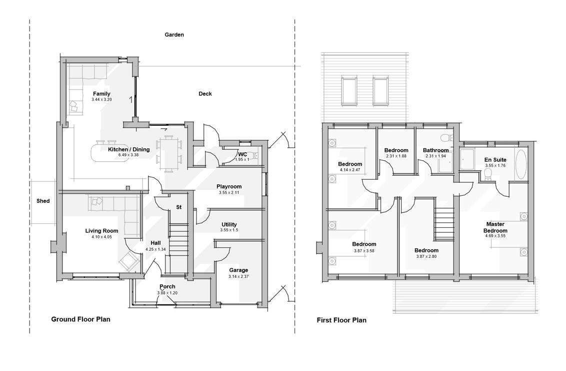
Its time to stop your property search, we have just the one! This extended family home is well positioned in the ever popular Raby Mere offering spacious accommodation (circa 1,800 sqft) including 3 reception spaces, breakfast kitchen with study, utility area with downstairs WC. Whilst upstairs you will find 5 bedrooms and 2 bath/shower rooms. The property is well set back from the road with gated entrance and screen providing privacy, ample parking and pleasant gardens. Come and see what this property offers.
Its worth pointing out this property has been extended to the rear (current owners) and a 2 story side extension (previous owners) which has created spacious family accommodation. The property also offers gas central heating, double glazing and solar panels which generate approximately £1,500 to £2,000 pa and for the next 15 years. This should be clarified prior to purchase.
The Accommodation
A good size porch connects into the hallway with access to principle rooms and stairs to the first floor.
On the left hand side you will find a well proportioned reception room with inset gas fire and surround with bow bay window to the front allowing natural light to pour in and enjoying the aspect top the front.
Making your way to the rear of the property you will find the open plan dining kitchen which is ideal for modern living. The dining area enjoys the aspect over the garden with sliding patio doors opening onto the decked area. Whilst the kitchen is on the left offering an extensive range of wall and base units finished in cream with complimentary worktops, Island with additional storage and breakfast bar, integrated appliances, inset sink and space for American style fridge freezer.
To complete the space you have the extended living area with vaulted ceiling, sky light, feature window and patio doors opening onto the decking.
Positioned off the dining area via a sliding door you will find the all important WC on the left with additional room which could be the home office, play room or form part of the utility space which can be found through a connecting door on the right hand side. From the utility you have access into the garage space.
Making your way upstairs the landing provides access to principal rooms which includes 5 bedrooms with one currently being used as an office, modern family shower room and ensuite which boasts a 4 piece suite which includes a large walk in shower, jacuzzi bath wash basin and WC.
The rear garden enjoys the South East aspect with a raised decked area which benefits from a covered section, stepping down to the lawn with planted borders and mature screen.
The property does have planning approved to extend the hall, lounge and bedroom at first floor level, details can be found using this link online.wirral.gov.uk /planning/ index.html?fa=getApplication&id=231017
Viewing
Please contact us on 0151 343 9060 if you wish to arrange a viewing appointment for this property, or require further information.
Energy Performance Certificate
Click here to view the Energy Efficiency Rating and Environmental Impact Rating for this property.
Brennan Ayre O'Neill endeavour to maintain accurate depictions of properties in photos, virtual tours, floor plans and descriptions, however, these are intended only as a guide and purchasers / tenants and must therefore satisfy themselves by personal inspection prior to committing to any contract.
Its worth pointing out this property has been extended to the rear (current owners) and a 2 story side extension (previous owners) which has created spacious family accommodation. The property also offers gas central heating, double glazing and solar panels which generate approximately £1,500 to £2,000 pa and for the next 15 years. This should be clarified prior to purchase.
The Accommodation
A good size porch connects into the hallway with access to principle rooms and stairs to the first floor.
On the left hand side you will find a well proportioned reception room with inset gas fire and surround with bow bay window to the front allowing natural light to pour in and enjoying the aspect top the front.
Making your way to the rear of the property you will find the open plan dining kitchen which is ideal for modern living. The dining area enjoys the aspect over the garden with sliding patio doors opening onto the decked area. Whilst the kitchen is on the left offering an extensive range of wall and base units finished in cream with complimentary worktops, Island with additional storage and breakfast bar, integrated appliances, inset sink and space for American style fridge freezer.
To complete the space you have the extended living area with vaulted ceiling, sky light, feature window and patio doors opening onto the decking.
Positioned off the dining area via a sliding door you will find the all important WC on the left with additional room which could be the home office, play room or form part of the utility space which can be found through a connecting door on the right hand side. From the utility you have access into the garage space.
Making your way upstairs the landing provides access to principal rooms which includes 5 bedrooms with one currently being used as an office, modern family shower room and ensuite which boasts a 4 piece suite which includes a large walk in shower, jacuzzi bath wash basin and WC.
The rear garden enjoys the South East aspect with a raised decked area which benefits from a covered section, stepping down to the lawn with planted borders and mature screen.
The property does have planning approved to extend the hall, lounge and bedroom at first floor level, details can be found using this link online.wirral.gov.uk /planning/ index.html?fa=getApplication&id=231017
Viewing
Please contact us on 0151 343 9060 if you wish to arrange a viewing appointment for this property, or require further information.
Energy Performance Certificate
Click here to view the Energy Efficiency Rating and Environmental Impact Rating for this property.
Brennan Ayre O'Neill endeavour to maintain accurate depictions of properties in photos, virtual tours, floor plans and descriptions, however, these are intended only as a guide and purchasers / tenants and must therefore satisfy themselves by personal inspection prior to committing to any contract.

