Full Description
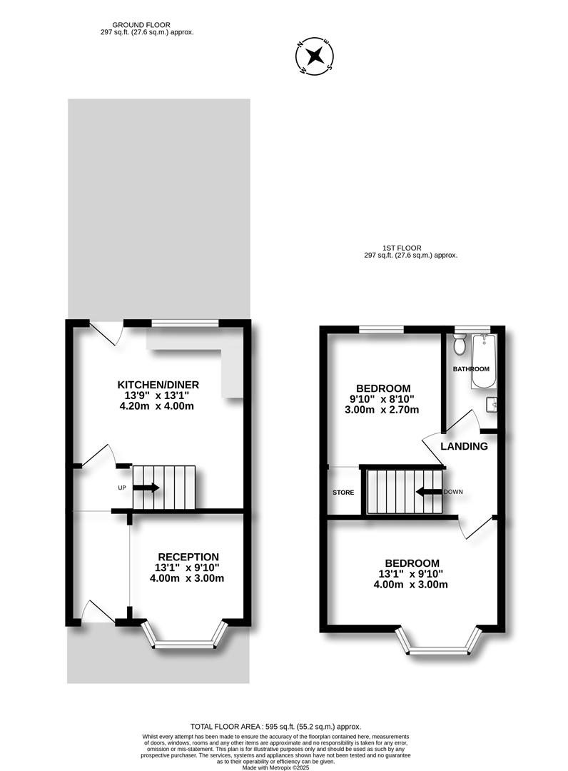
**NO CHAIN** This two-bedroom property provides spacious accommodation which includes a separate lounge to the front with a bay window allowing natural light to pour in. The stairs are centrally positioned, dividing the lounge from the dining kitchen at the rear. The kitchen itself is fitted on two walls providing a range of wall and base units, space for appliances and a wall mounted boiler with additional space under the stairs and door leading out to the enclosed yard. Making your way upstairs the first floor provides two well proportioned bedrooms and a white bathroom having a bath with shower above, wash basin and WC. Local amenities including shops, parks and schools within walking distance and commuting distance of Liverpool and Chester, this property has a lot to offer.
Viewing
Please contact us on 0151 343 9060 if you wish to arrange a viewing appointment for this property, or require further information.
Energy Performance Certificate
Click here to view the Energy Efficiency Rating and Environmental Impact Rating for this property.
Brennan Ayre O'Neill endeavour to maintain accurate depictions of properties in photos, virtual tours, floor plans and descriptions, however, these are intended only as a guide and purchasers / tenants and must therefore satisfy themselves by personal inspection prior to committing to any contract.
Viewing
Please contact us on 0151 343 9060 if you wish to arrange a viewing appointment for this property, or require further information.
Energy Performance Certificate
Click here to view the Energy Efficiency Rating and Environmental Impact Rating for this property.
Brennan Ayre O'Neill endeavour to maintain accurate depictions of properties in photos, virtual tours, floor plans and descriptions, however, these are intended only as a guide and purchasers / tenants and must therefore satisfy themselves by personal inspection prior to committing to any contract.

